Вторичное жилье Санкт-Петербурга: продажа 4-комнатных квартир рядом с метро Пролетарская

Найдено вариантов 5
Отсортировано:
Дата изменения: вчера
id 4175245
1 / 13
Бурцева ул., 17
8 100 000 ₽
165 577 ₽/м2
ID: 1917146 Вашему вниманию предлагается небольшая 4х ком квартира в 5 остановках от метро Проспект Ветеранов. Сам дом расположен в зеленом районе, под окнами детская площадка . Рядом с домом расположены две школы, дет сад, продовольственные магазины ,Сбербанк ,почта , МФЦ, детская и взрослая поликлиники. В пешей доступности парк Александрено. Рядом расположены бассейн и баня. Один собственник. первая продажа.
Дата изменения: вчера
id 4171236
1 / 27
Ветеранов пр., 30А
10 200 000 ₽
172 297 ₽/м2
ID: 1916401 Лучшее предложение в районе! Квартира с идеальным расположением для тех, кто ценит время! Рядом метро (4 минуты), а выезд на ЗСД и КАД открывает дорогу в любую точку города и области. 4-к. квартира, 2 этаж, пр. Ветеранов, д.30 ОПИСАНИЕ: Продается теплая и уютная квартира для большой семьи в экологически чистом районе. Это идеальный баланс между тишиной зеленого двора и транспортной доступностью. ТРАНСПОРТ И РАСПОЛОЖЕНИЕ: · Метро: 4 минуты пешком. · Авто: Удобный выезд на проспект Ветеранов, КАД и ЗСД. Легко добраться до центра, в аэропорт или за город. Менее чем в 1,7 км расположена станция «Дачное». Отличная ликвидность благодаря расположению. ДВОР И ДОМ: · Дом находится в зеленой зоне, во дворе всегда есть свободные места для парковки. · Надежный панельный 5-этажный дом (ж/б перекрытия), чистая парадная без посторонних запахов. С 2006 года в рамках плановой реконструкции произведены 2 капитальных ремонта дома, с 2007 по 2008 гг. Виды работ капитального ремонта: - Благоустройство придомовой территории - Ремонт конструкций и замена покрытий крыш, замена стояков отопления, водоснабжения и водоотведения. Чуть позже произведен качественный ремонт фасада с утеплением стен. · Уникальная особенность двора: здесь расположена школа № 277. Ребенок может ходить в школу самостоятельно, не переходя через оживленные магистрали. · Рядом детские сады №25 и через дорогу №52 и №62 и футбольное поле, спортивные и детские площадки. Также недалеко лицей №387 им. Н.В. Белоусова и школа олимпийского резерва Кировского района с бассейном. О КВАРТИРЕ: · Этаж: 2 (оптимальный для семей с детьми и пожилых родственников). · Планировка квартиры классическая 3- сторонняя, (окна выходят на улицу и во двор): комнаты две изолированные. Еще две комнаты смежные (возможность оборудовать кабинет для работы в одной из комнат или сделать детскую для самого младшего). Спальни можно сделать тихими, окнами в зелень. В кухне стандартное окно, как в комнатах! · Состояние: Жилое, частично сделан косметический ремонт, установлены стеклопакеты. · Санузел: Раздельный. · Потолки: 2.50 м. ИНФРАСТРУКТУРА (все рядом): В пешей доступности магазины («Пятерочка», «Вкусвилл», «Магнит» и др.), аптеки, поликлиники, пекарни, кафе, пункты выдачи Ozon и Wildberries, химчистка. Торговые центры, спорткомплекс с бассейном. ЮРИДИЧЕСКАЯ ЧИСТОТА (Документы готовы к сделке): · Собственники: 3 взрослых родственника (все до 40 лет), готовы к проверкам. · Форма собственности: Приватизация (более 3 лет в собственности). · Без обременений, без долгов, материнский капитал не использовался. · Собственники будут присутствовать на сделке лично. . Полная стоимость в договоре. · Подходит под любую форму оплаты, все виды ипотек, субсидий и сертификатов. Возможен разумный торг! ЗАИНТЕРЕСОВАЛО? Звоните и записывайтесь на просмотр! Отличный вариант для комфортной семейной жизни или инвестиций. Сохраняйте в избранное, чтобы не потерять! Поможем с одобрением ипотеки! Компания АДВЕКС» гарантирует вам юридическую чистоту сделки и комфортное ее проведение.
Дата изменения: 29.04.2026
id 4162013
1 / 17
Ветеранов пр., 67к4
8 400 000 ₽
170 385 ₽/м2
ID: 1914917 Продается уютная,светлая 4-комнатная квартира с хорошим косметическим ремонтом,площадью 49,3 Квартира расположена на 5 этаже в зеленом районе малоэтажной застройки.Собственник один,более пяти лет,документы готовы к продаже.
Дата изменения: 09.03.2026
id 4165123
1 / 7
Партизана Германа ул., 32к2А
46 900 000 ₽
127 793 ₽/м2
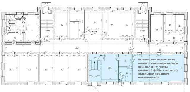
ID: 1915464 К продаже предлагается коммунальная квартира с окнами на три стороны в доме сталинской эпохи 1954 г.п. (бывшее общежитие). Поскольку продаваемый объект занимает почти весь первый этаж и имеет по плану два крыла и два входа, он прекрасно подойдет под любые бизнес-цели: это может быть как представительский офис, так и апартаменты или мини-отель. На плане выделенная цветом часть этажа - городское имущество, переведенное в нежилой фонд, является отдельным объектом недвижимости. Дом расположен в тихом зеленом месте в окружении таких же сталинок. В трех минутах - ж/д станция Лигово, от которой очень быстро можно добраться как до центра (ст.м. Балтийская), так и до главных достопримечательностей в окрестностях Петербурга - Стрельны, Петергофа, Ораниенбаума. Поблизости также остановки общественного транспорта с удобным сообщением в другие районы города. В шаговой доступности - вся инфраструктура, обеспечивающая комфортное проживание и доступ к необходимым услугам и развлечениям: СФР, налоговая, школы, д/сады, магазины, кафе, аптеки, кинотеатр, Фитнес-хаус с бассейном, каток Ледовая арена и Рубеж. Благоприятна и экологическая обстановка Красносельского района: скверы, парки, близость Финского залива, отсутствие вредных производств и удачная роза ветров дарят ему чистый воздух. В квартире шесть комнат, в которых люди проживают на постоянной основе. Седьмая комната (19,1 кв.м) принадлежит городу и в данный момент не используется. Ремонты по дому: в 2017 г. обновлена крыша; в 2026 году планируется ремонт центрального отопления и систем водоотведения. Звоните, ответим на все интересующие вас вопросы и, конечно, приглашаем на просмотры. При необходимости поможем с переводом объекта в нежилой фонд.
Дата изменения: 16.01.2026
id 4150214
1 / 12
Лётчика Пилютова ул., 23А
13 500 000 ₽
175 553 ₽/м2
ID: 1913229 В продаже светлая, двухсторонняя 4-х комнатная квартира с двумя лоджиями. Квартира в прямой продаже, подходит под ипотеку любого банка, субсидии, матинский капитал. Эта квартира станет идеальным выбором для семьи с детьми, в шаговой доступности школа, детсад, детские, спортивные площадки. Вокруг много зелени, парк Сосновая поляна для прогулок в шаговой доступности. Рядом спортивный комплекс с бассейнами и ледовой ареной, художественная и музыкальная школы. Удобное расположение позволит быстро добраться до любого района города. Остановки общественного транспорта в пешей доступности. До станции метро Ветеранов 17 минут на транспорте. Звоните! Просмотры по договоренности , в удобное для Вас время.

Покупка 4-комнатной квартиры у метро пр. Ветеранов

На портале БН по данному запросу размещено 4 4-комнатных квартир у метро пр. Ветеранов.

Стоимость самого дешевого предложения - 8 100 000 руб., самого дорогого - 13 500 000 руб. Общая площадь объектов от 49 м2 до 77 м2.

Средняя стоимость 4-комнатной квартиры у метро пр. Ветеранов - 10 050 000 руб. Средняя цена квадратного метра у метро пр. Ветеранов - 170 953 руб.

Свяжитесь с продавцом заитересовавшего вас объекта для получения дополнительной информации или записи на онлайн-показ.