7-комнатная квартира367 кв.м.

Скопировать ссылку
Проспект Ветеранов
09.03.2026 21:00 id 4165123 Адвекс, Бирюкова М.Ф.
46 900 000 ₽
127 793 ₽/м2, встречная покупка, ипотека
Квартира
Общая площадь
367.00 кв.м.
Жилая площадь
136.60 кв.м.
Кухня
16.50 кв.м.
Ремонт
Косметический ремонт
Балкон
Нет
Вид из окон
Во двор, На улицу
Санузел
Раздельный
Горячая вода
Центральное
Тип плиты
Газовая
Дом
Этажность
1/3
Тип дома
Сталинский
Год постройки
1954
Лифт
Нет
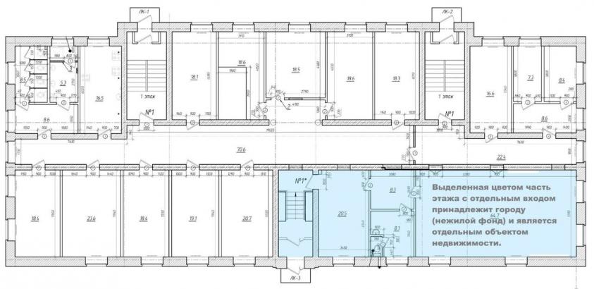
ID: 1915464 К продаже предлагается коммунальная квартира с окнами на три стороны в доме сталинской эпохи 1954 г.п. (бывшее общежитие). Поскольку продаваемый объект занимает почти весь первый этаж и имеет по плану два крыла и два входа, он прекрасно подойдет под любые бизнес-цели: это может быть как представительский офис, так и апартаменты или мини-отель. На плане выделенная цветом часть этажа - городское имущество, переведенное в нежилой фонд, является отдельным объектом недвижимости. Дом расположен в тихом зеленом месте в окружении таких же сталинок. В трех минутах - ж/д станция Лигово, от которой очень быстро можно добраться как до центра (ст.м. Балтийская), так и до главных достопримечательностей в окрестностях Петербурга - Стрельны, Петергофа, Ораниенбаума. Поблизости также остановки общественного транспорта с удобным сообщением в другие районы города. В шаговой доступности - вся инфраструктура, обеспечивающая комфортное проживание и доступ к необходимым услугам и развлечениям: СФР, налоговая, школы, д/сады, магазины, кафе, аптеки, кинотеатр, Фитнес-хаус с бассейном, каток Ледовая арена и Рубеж. Благоприятна и экологическая обстановка Красносельского района: скверы, парки, близость Финского залива, отсутствие вредных производств и удачная роза ветров дарят ему чистый воздух. В квартире шесть комнат, в которых люди проживают на постоянной основе. Седьмая комната (19,1 кв.м) принадлежит городу и в данный момент не используется. Ремонты по дому: в 2017 г. обновлена крыша; в 2026 году планируется ремонт центрального отопления и систем водоотведения. Звоните, ответим на все интересующие вас вопросы и, конечно, приглашаем на просмотры. При необходимости поможем с переводом объекта в нежилой фонд.
Расположение
Проспект Ветеранов 4.6 км
Ленинский проспект 5.7 км
Лигово 0.3 км
Сосновая Поляна 1.8 км
Свяжитесь с продавцом
Ваше имя
Телефон
E-mail
Cообщение