3-комнатные квартиры в ЖК Юнтолово

3-комнатные квартиры в ЖК Юнтолово

ЖК «Юнтолово»
1 очередь - сдана 2 очередь - сдана 3 очередь - сдана 4 очередь - сдана 5 очередь - сдана 6.1 очередь - сдана 6.2 очередь - сдана 7.1 очередь - сдана 7.2 очередь - 1 кв. 2026 7.3 очередь - 4 кв. 2026
Санкт-Петербург, Юнтоловский пр., 43-55
«Беговая»5.8 км.«Комендантский проспект»6.9 км.
«Ольгино» 4 км.
Жилой комплекс: Юнтолово; Кол-во комнат: 3; Застройщик: ГЛАВСТРОЙ-СПб
Найдено вариантов 24
Отсортировано:
Дата изменения: 26.08.2025
id 4091236
1 / 14
Юнтоловский пр., 43-55
застройщик
17 514 000 ₽
212 990 ₽/м2

Продается 3-комнатная квартира, 82,23 кв.м. по адресу: Россия, Санкт-Петербург, ЖК «Юнтолово». Квартира от Застройщика.Возможна покупка квартиры по льготным и специальным ипотечным программам.

Цена указана с учетом применения скидки.

Условия и актуальные ставки уточняйте у менеджера отдела продаж.

ПАРК-КВАРТАЛ – один из кварталов с индивидуальным смыслом. Квартал граничит с парками без пересечения транспортных артерий. В непосредственной близости к памятнику природы Юнтоловскому заказнику. Есть видовые квартиры на Финский залив.

Строит один застройщик, поэтому грамотно планирует улично-дорожную сеть, пешеходные зоны, парковые пространства. Целостность проекта без архитектурных нарушений. Вместе с вводом в эксплуатацию всего квартала будет введена поликлиника для детей и взрослых и детский сад (в границах квартала).

ПАРК-КВАРТАЛ спроектирован по принципам разумной организации пространства, когда все основные объекты инфраструктуры в шаговой доступности. Включает поликлинику для взрослых и детей с современным оборудованием, новый детский сад на 200 мест, крытую наземную парковку вместительностью до 500 машино-мест и коммерческие помещения на первых этажах жилых зданий, предлагающие широкий ассортимент товаров и услуг.

Преимущества:

? Оригинальные, европейские фасады от архитектурного бюро «А. Лен», известные своим выдержанным и гармоничным стилем

? Увеличенные оконные проёмы с живописными видами на Центральный парк и «гринфингер»

? Жилье у парка (граничит с Центральным парком и гринфингером)

? Закрытые дворы без машин (корпуса 3-6)

? Ландшафтный дизайн и арт-объекты на территории квартала

? Коммерция на первых этажах корпусов 3-6

? Высота потолков в квартирах 2,76 м

? Колясочные в каждой парадной

? Проходные парадные и безбарьерная среда

? Не более 6 квартир на этаже

? Лифтовое оборудование европейского бренда

? Яркие и стильные входные группы с крупной индикацией номера подъезда и козырьком

? Графичное оформление балконов и лоджий

? Контрастная цветовая гамма, декоративные вставки из кирпича

? Квартиры с чистовой отделкой «Комфорт» и White Box

Отделка класса Комфорт представлена в двух вариантах цветового исполнения.

? Включает в себя ламинат 32 класса с текстурой дерева и фаской, текстурированные обои под покраску, крашеный потолок, откосы, установку подоконников. Межкомнатные двери глухие, остекленная дверь в кухню.

? В санузле стены и пол отделаны керамической плиткой, установлены все сантехнические приборы, выполнена разводка и подключение воды, установлены латунные однорычажные смесители.

? Выполнена разводка электрики и установка конечных устройств электрофурнитуры.

? Светодиодные светильники в прихожей, санузле и на лоджии/балконе.

Отделка класса White Box

Данный вид отделки квартиры широко распространен среди застройщиков. Он подразумевает, что квартира полностью подготовлена к чистовой отделке и все черновые работы выполнены.

Полы выровнены. Потолки подготовлены для отделки. Выполнена скрытая разводка электрики. Стояка ГВС/ХВС, канализация с заглушками и приборами учета.

Клиенту останется только выбрать отделочные материалы, избежав самые грязные и неприятные процессы, и ремонт готов.

 

Подробнее о проекте и условиях покупки уточняйте у менеджера отдела продаж.

Дата изменения: 26.08.2025
id 4118363
1 / 14
Юнтоловский пр., 43-55
застройщик
17 983 000 ₽
218 690 ₽/м2

Продается 3-комнатная квартира, 82,23 кв.м. по адресу: Россия, Санкт-Петербург, ЖК «Юнтолово». Квартира от Застройщика.Возможна покупка квартиры по льготным и специальным ипотечным программам.

Цена указана с учетом применения скидки.

Условия и актуальные ставки уточняйте у менеджера отдела продаж.

ПАРК-КВАРТАЛ – один из кварталов с индивидуальным смыслом. Квартал граничит с парками без пересечения транспортных артерий. В непосредственной близости к памятнику природы Юнтоловскому заказнику. Есть видовые квартиры на Финский залив.

Строит один застройщик, поэтому грамотно планирует улично-дорожную сеть, пешеходные зоны, парковые пространства. Целостность проекта без архитектурных нарушений. Вместе с вводом в эксплуатацию всего квартала будет введена поликлиника для детей и взрослых и детский сад (в границах квартала).

ПАРК-КВАРТАЛ спроектирован по принципам разумной организации пространства, когда все основные объекты инфраструктуры в шаговой доступности. Включает поликлинику для взрослых и детей с современным оборудованием, новый детский сад на 200 мест, крытую наземную парковку вместительностью до 500 машино-мест и коммерческие помещения на первых этажах жилых зданий, предлагающие широкий ассортимент товаров и услуг.

Преимущества:

? Оригинальные, европейские фасады от архитектурного бюро «А. Лен», известные своим выдержанным и гармоничным стилем

? Увеличенные оконные проёмы с живописными видами на Центральный парк и «гринфингер»

? Жилье у парка (граничит с Центральным парком и гринфингером)

? Закрытые дворы без машин (корпуса 3-6)

? Ландшафтный дизайн и арт-объекты на территории квартала

? Коммерция на первых этажах корпусов 3-6

? Высота потолков в квартирах 2,76 м

? Колясочные в каждой парадной

? Проходные парадные и безбарьерная среда

? Не более 6 квартир на этаже

? Лифтовое оборудование европейского бренда

? Яркие и стильные входные группы с крупной индикацией номера подъезда и козырьком

? Графичное оформление балконов и лоджий

? Контрастная цветовая гамма, декоративные вставки из кирпича

? Квартиры с чистовой отделкой «Комфорт» и White Box

Отделка класса Комфорт представлена в двух вариантах цветового исполнения.

? Включает в себя ламинат 32 класса с текстурой дерева и фаской, текстурированные обои под покраску, крашеный потолок, откосы, установку подоконников. Межкомнатные двери глухие, остекленная дверь в кухню.

? В санузле стены и пол отделаны керамической плиткой, установлены все сантехнические приборы, выполнена разводка и подключение воды, установлены латунные однорычажные смесители.

? Выполнена разводка электрики и установка конечных устройств электрофурнитуры.

? Светодиодные светильники в прихожей, санузле и на лоджии/балконе.

Отделка класса White Box

Данный вид отделки квартиры широко распространен среди застройщиков. Он подразумевает, что квартира полностью подготовлена к чистовой отделке и все черновые работы выполнены.

Полы выровнены. Потолки подготовлены для отделки. Выполнена скрытая разводка электрики. Стояка ГВС/ХВС, канализация с заглушками и приборами учета.

Клиенту останется только выбрать отделочные материалы, избежав самые грязные и неприятные процессы, и ремонт готов.

 

Подробнее о проекте и условиях покупки уточняйте у менеджера отдела продаж.

Дата изменения: 25.08.2025
id 4126504
1 / 14
Юнтоловский пр., 43-55
застройщик
16 143 000 ₽
249 660 ₽/м2

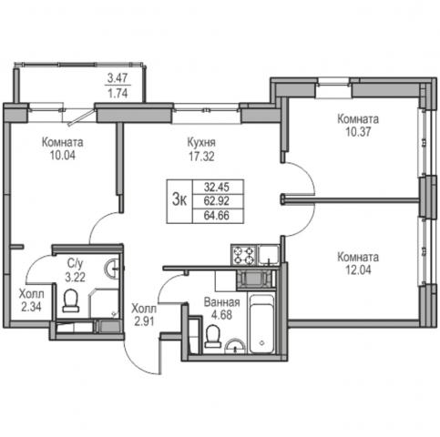
Продается 3-комнатная квартира, 64,66 кв.м. по адресу: Россия, Санкт-Петербург, ЖК «Юнтолово». Квартира от Застройщика.Возможна покупка квартиры по льготным и специальным ипотечным программам.

Цена указана с учетом применения скидки.

Условия и актуальные ставки уточняйте у менеджера отдела продаж.

ПАРК-КВАРТАЛ – один из кварталов с индивидуальным смыслом. Квартал граничит с парками без пересечения транспортных артерий. В непосредственной близости к памятнику природы Юнтоловскому заказнику. Есть видовые квартиры на Финский залив.

Строит один застройщик, поэтому грамотно планирует улично-дорожную сеть, пешеходные зоны, парковые пространства. Целостность проекта без архитектурных нарушений. Вместе с вводом в эксплуатацию всего квартала будет введена поликлиника для детей и взрослых и детский сад (в границах квартала).

ПАРК-КВАРТАЛ спроектирован по принципам разумной организации пространства, когда все основные объекты инфраструктуры в шаговой доступности. Включает поликлинику для взрослых и детей с современным оборудованием, новый детский сад на 200 мест, крытую наземную парковку вместительностью до 500 машино-мест и коммерческие помещения на первых этажах жилых зданий, предлагающие широкий ассортимент товаров и услуг.

Преимущества:

? Оригинальные, европейские фасады от архитектурного бюро «А. Лен», известные своим выдержанным и гармоничным стилем

? Увеличенные оконные проёмы с живописными видами на Центральный парк и «гринфингер»

? Жилье у парка (граничит с Центральным парком и гринфингером)

? Закрытые дворы без машин (корпуса 3-6)

? Ландшафтный дизайн и арт-объекты на территории квартала

? Коммерция на первых этажах корпусов 3-6

? Высота потолков в квартирах 2,76 м

? Колясочные в каждой парадной

? Проходные парадные и безбарьерная среда

? Не более 6 квартир на этаже

? Лифтовое оборудование европейского бренда

? Яркие и стильные входные группы с крупной индикацией номера подъезда и козырьком

? Графичное оформление балконов и лоджий

? Контрастная цветовая гамма, декоративные вставки из кирпича

? Квартиры с чистовой отделкой «Комфорт» и White Box

Отделка класса Комфорт представлена в двух вариантах цветового исполнения.

? Включает в себя ламинат 32 класса с текстурой дерева и фаской, текстурированные обои под покраску, крашеный потолок, откосы, установку подоконников. Межкомнатные двери глухие, остекленная дверь в кухню.

? В санузле стены и пол отделаны керамической плиткой, установлены все сантехнические приборы, выполнена разводка и подключение воды, установлены латунные однорычажные смесители.

? Выполнена разводка электрики и установка конечных устройств электрофурнитуры.

? Светодиодные светильники в прихожей, санузле и на лоджии/балконе.

Отделка класса White Box

Данный вид отделки квартиры широко распространен среди застройщиков. Он подразумевает, что квартира полностью подготовлена к чистовой отделке и все черновые работы выполнены.

Полы выровнены. Потолки подготовлены для отделки. Выполнена скрытая разводка электрики. Стояка ГВС/ХВС, канализация с заглушками и приборами учета.

Клиенту останется только выбрать отделочные материалы, избежав самые грязные и неприятные процессы, и ремонт готов.

 

Подробнее о проекте и условиях покупки уточняйте у менеджера отдела продаж.

Дата изменения: 25.08.2025
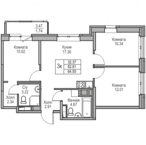
id 4126500
1 / 13
Юнтоловский пр., 43-55
застройщик
16 718 000 ₽
259 000 ₽/м2

Продается 3-комнатная квартира, 64,55 кв.м. по адресу: Россия, Санкт-Петербург, ЖК «Юнтолово». Квартира от Застройщика.Возможна покупка квартиры по льготным и специальным ипотечным программам.

Цена указана с учетом применения скидки.

Условия и актуальные ставки уточняйте у менеджера отдела продаж.

ПАРК-КВАРТАЛ – один из кварталов с индивидуальным смыслом. Квартал граничит с парками без пересечения транспортных артерий. В непосредственной близости к памятнику природы Юнтоловскому заказнику. Есть видовые квартиры на Финский залив.

Строит один застройщик, поэтому грамотно планирует улично-дорожную сеть, пешеходные зоны, парковые пространства. Целостность проекта без архитектурных нарушений. Вместе с вводом в эксплуатацию всего квартала будет введена поликлиника для детей и взрослых и детский сад (в границах квартала).

ПАРК-КВАРТАЛ спроектирован по принципам разумной организации пространства, когда все основные объекты инфраструктуры в шаговой доступности. Включает поликлинику для взрослых и детей с современным оборудованием, новый детский сад на 200 мест, крытую наземную парковку вместительностью до 500 машино-мест и коммерческие помещения на первых этажах жилых зданий, предлагающие широкий ассортимент товаров и услуг.

Преимущества:

? Оригинальные, европейские фасады от архитектурного бюро «А. Лен», известные своим выдержанным и гармоничным стилем

? Увеличенные оконные проёмы с живописными видами на Центральный парк и «гринфингер»

? Жилье у парка (граничит с Центральным парком и гринфингером)

? Закрытые дворы без машин (корпуса 3-6)

? Ландшафтный дизайн и арт-объекты на территории квартала

? Коммерция на первых этажах корпусов 3-6

? Высота потолков в квартирах 2,76 м

? Колясочные в каждой парадной

? Проходные парадные и безбарьерная среда

? Не более 6 квартир на этаже

? Лифтовое оборудование европейского бренда

? Яркие и стильные входные группы с крупной индикацией номера подъезда и козырьком

? Графичное оформление балконов и лоджий

? Контрастная цветовая гамма, декоративные вставки из кирпича

? Квартиры с чистовой отделкой «Комфорт» и White Box

Отделка класса Комфорт представлена в двух вариантах цветового исполнения.

? Включает в себя ламинат 32 класса с текстурой дерева и фаской, текстурированные обои под покраску, крашеный потолок, откосы, установку подоконников. Межкомнатные двери глухие, остекленная дверь в кухню.

? В санузле стены и пол отделаны керамической плиткой, установлены все сантехнические приборы, выполнена разводка и подключение воды, установлены латунные однорычажные смесители.

? Выполнена разводка электрики и установка конечных устройств электрофурнитуры.

? Светодиодные светильники в прихожей, санузле и на лоджии/балконе.

Отделка класса White Box

Данный вид отделки квартиры широко распространен среди застройщиков. Он подразумевает, что квартира полностью подготовлена к чистовой отделке и все черновые работы выполнены.

Полы выровнены. Потолки подготовлены для отделки. Выполнена скрытая разводка электрики. Стояка ГВС/ХВС, канализация с заглушками и приборами учета.

Клиенту останется только выбрать отделочные материалы, избежав самые грязные и неприятные процессы, и ремонт готов.

 

Подробнее о проекте и условиях покупки уточняйте у менеджера отдела продаж.

Дата изменения: 25.08.2025
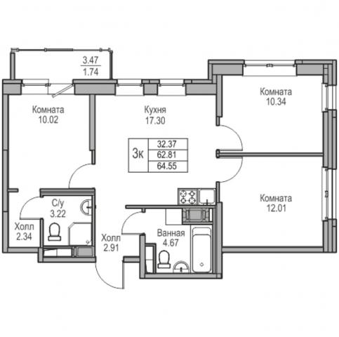
id 4120621
1 / 13
Юнтоловский пр., 43-55
застройщик
15 907 000 ₽
246 430 ₽/м2

Продается 3-комнатная квартира, 64,55 кв.м. по адресу: Россия, Санкт-Петербург, ЖК «Юнтолово». Квартира от Застройщика.Возможна покупка квартиры по льготным и специальным ипотечным программам.

Цена указана с учетом применения скидки.

Условия и актуальные ставки уточняйте у менеджера отдела продаж.

ПАРК-КВАРТАЛ – один из кварталов с индивидуальным смыслом. Квартал граничит с парками без пересечения транспортных артерий. В непосредственной близости к памятнику природы Юнтоловскому заказнику. Есть видовые квартиры на Финский залив.

Строит один застройщик, поэтому грамотно планирует улично-дорожную сеть, пешеходные зоны, парковые пространства. Целостность проекта без архитектурных нарушений. Вместе с вводом в эксплуатацию всего квартала будет введена поликлиника для детей и взрослых и детский сад (в границах квартала).

ПАРК-КВАРТАЛ спроектирован по принципам разумной организации пространства, когда все основные объекты инфраструктуры в шаговой доступности. Включает поликлинику для взрослых и детей с современным оборудованием, новый детский сад на 200 мест, крытую наземную парковку вместительностью до 500 машино-мест и коммерческие помещения на первых этажах жилых зданий, предлагающие широкий ассортимент товаров и услуг.

Преимущества:

? Оригинальные, европейские фасады от архитектурного бюро «А. Лен», известные своим выдержанным и гармоничным стилем

? Увеличенные оконные проёмы с живописными видами на Центральный парк и «гринфингер»

? Жилье у парка (граничит с Центральным парком и гринфингером)

? Закрытые дворы без машин (корпуса 3-6)

? Ландшафтный дизайн и арт-объекты на территории квартала

? Коммерция на первых этажах корпусов 3-6

? Высота потолков в квартирах 2,76 м

? Колясочные в каждой парадной

? Проходные парадные и безбарьерная среда

? Не более 6 квартир на этаже

? Лифтовое оборудование европейского бренда

? Яркие и стильные входные группы с крупной индикацией номера подъезда и козырьком

? Графичное оформление балконов и лоджий

? Контрастная цветовая гамма, декоративные вставки из кирпича

? Квартиры с чистовой отделкой «Комфорт» и White Box

Отделка класса Комфорт представлена в двух вариантах цветового исполнения.

? Включает в себя ламинат 32 класса с текстурой дерева и фаской, текстурированные обои под покраску, крашеный потолок, откосы, установку подоконников. Межкомнатные двери глухие, остекленная дверь в кухню.

? В санузле стены и пол отделаны керамической плиткой, установлены все сантехнические приборы, выполнена разводка и подключение воды, установлены латунные однорычажные смесители.

? Выполнена разводка электрики и установка конечных устройств электрофурнитуры.

? Светодиодные светильники в прихожей, санузле и на лоджии/балконе.

Отделка класса White Box

Данный вид отделки квартиры широко распространен среди застройщиков. Он подразумевает, что квартира полностью подготовлена к чистовой отделке и все черновые работы выполнены.

Полы выровнены. Потолки подготовлены для отделки. Выполнена скрытая разводка электрики. Стояка ГВС/ХВС, канализация с заглушками и приборами учета.

Клиенту останется только выбрать отделочные материалы, избежав самые грязные и неприятные процессы, и ремонт готов.

 

Подробнее о проекте и условиях покупки уточняйте у менеджера отдела продаж.

Дата изменения: 25.08.2025
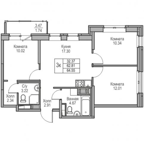
id 4120601
1 / 14
Юнтоловский пр., 43-55
застройщик
16 125 000 ₽
249 375 ₽/м2

Продается 3-комнатная квартира, 64,66 кв.м. по адресу: Россия, Санкт-Петербург, ЖК «Юнтолово». Квартира от Застройщика.Возможна покупка квартиры по льготным и специальным ипотечным программам.

Цена указана с учетом применения скидки.

Условия и актуальные ставки уточняйте у менеджера отдела продаж.

ПАРК-КВАРТАЛ – один из кварталов с индивидуальным смыслом. Квартал граничит с парками без пересечения транспортных артерий. В непосредственной близости к памятнику природы Юнтоловскому заказнику. Есть видовые квартиры на Финский залив.

Строит один застройщик, поэтому грамотно планирует улично-дорожную сеть, пешеходные зоны, парковые пространства. Целостность проекта без архитектурных нарушений. Вместе с вводом в эксплуатацию всего квартала будет введена поликлиника для детей и взрослых и детский сад (в границах квартала).

ПАРК-КВАРТАЛ спроектирован по принципам разумной организации пространства, когда все основные объекты инфраструктуры в шаговой доступности. Включает поликлинику для взрослых и детей с современным оборудованием, новый детский сад на 200 мест, крытую наземную парковку вместительностью до 500 машино-мест и коммерческие помещения на первых этажах жилых зданий, предлагающие широкий ассортимент товаров и услуг.

Преимущества:

? Оригинальные, европейские фасады от архитектурного бюро «А. Лен», известные своим выдержанным и гармоничным стилем

? Увеличенные оконные проёмы с живописными видами на Центральный парк и «гринфингер»

? Жилье у парка (граничит с Центральным парком и гринфингером)

? Закрытые дворы без машин (корпуса 3-6)

? Ландшафтный дизайн и арт-объекты на территории квартала

? Коммерция на первых этажах корпусов 3-6

? Высота потолков в квартирах 2,76 м

? Колясочные в каждой парадной

? Проходные парадные и безбарьерная среда

? Не более 6 квартир на этаже

? Лифтовое оборудование европейского бренда

? Яркие и стильные входные группы с крупной индикацией номера подъезда и козырьком

? Графичное оформление балконов и лоджий

? Контрастная цветовая гамма, декоративные вставки из кирпича

? Квартиры с чистовой отделкой «Комфорт» и White Box

Отделка класса Комфорт представлена в двух вариантах цветового исполнения.

? Включает в себя ламинат 32 класса с текстурой дерева и фаской, текстурированные обои под покраску, крашеный потолок, откосы, установку подоконников. Межкомнатные двери глухие, остекленная дверь в кухню.

? В санузле стены и пол отделаны керамической плиткой, установлены все сантехнические приборы, выполнена разводка и подключение воды, установлены латунные однорычажные смесители.

? Выполнена разводка электрики и установка конечных устройств электрофурнитуры.

? Светодиодные светильники в прихожей, санузле и на лоджии/балконе.

Отделка класса White Box

Данный вид отделки квартиры широко распространен среди застройщиков. Он подразумевает, что квартира полностью подготовлена к чистовой отделке и все черновые работы выполнены.

Полы выровнены. Потолки подготовлены для отделки. Выполнена скрытая разводка электрики. Стояка ГВС/ХВС, канализация с заглушками и приборами учета.

Клиенту останется только выбрать отделочные материалы, избежав самые грязные и неприятные процессы, и ремонт готов.

 

Подробнее о проекте и условиях покупки уточняйте у менеджера отдела продаж.

Дата изменения: 25.08.2025
id 4136501
1 / 13
Юнтоловский пр., 43-55
застройщик
15 944 000 ₽
247 000 ₽/м2

Продается 3-комнатная квартира, 64,55 кв.м. по адресу: Россия, Санкт-Петербург, ЖК «Юнтолово». Квартира от Застройщика.Возможна покупка квартиры по льготным и специальным ипотечным программам.

Цена указана с учетом применения скидки.

Условия и актуальные ставки уточняйте у менеджера отдела продаж.

ПАРК-КВАРТАЛ – один из кварталов с индивидуальным смыслом. Квартал граничит с парками без пересечения транспортных артерий. В непосредственной близости к памятнику природы Юнтоловскому заказнику. Есть видовые квартиры на Финский залив.

Строит один застройщик, поэтому грамотно планирует улично-дорожную сеть, пешеходные зоны, парковые пространства. Целостность проекта без архитектурных нарушений. Вместе с вводом в эксплуатацию всего квартала будет введена поликлиника для детей и взрослых и детский сад (в границах квартала).

ПАРК-КВАРТАЛ спроектирован по принципам разумной организации пространства, когда все основные объекты инфраструктуры в шаговой доступности. Включает поликлинику для взрослых и детей с современным оборудованием, новый детский сад на 200 мест, крытую наземную парковку вместительностью до 500 машино-мест и коммерческие помещения на первых этажах жилых зданий, предлагающие широкий ассортимент товаров и услуг.

Преимущества:

? Оригинальные, европейские фасады от архитектурного бюро «А. Лен», известные своим выдержанным и гармоничным стилем

? Увеличенные оконные проёмы с живописными видами на Центральный парк и «гринфингер»

? Жилье у парка (граничит с Центральным парком и гринфингером)

? Закрытые дворы без машин (корпуса 3-6)

? Ландшафтный дизайн и арт-объекты на территории квартала

? Коммерция на первых этажах корпусов 3-6

? Высота потолков в квартирах 2,76 м

? Колясочные в каждой парадной

? Проходные парадные и безбарьерная среда

? Не более 6 квартир на этаже

? Лифтовое оборудование европейского бренда

? Яркие и стильные входные группы с крупной индикацией номера подъезда и козырьком

? Графичное оформление балконов и лоджий

? Контрастная цветовая гамма, декоративные вставки из кирпича

? Квартиры с чистовой отделкой «Комфорт» и White Box

Отделка класса Комфорт представлена в двух вариантах цветового исполнения.

? Включает в себя ламинат 32 класса с текстурой дерева и фаской, текстурированные обои под покраску, крашеный потолок, откосы, установку подоконников. Межкомнатные двери глухие, остекленная дверь в кухню.

? В санузле стены и пол отделаны керамической плиткой, установлены все сантехнические приборы, выполнена разводка и подключение воды, установлены латунные однорычажные смесители.

? Выполнена разводка электрики и установка конечных устройств электрофурнитуры.

? Светодиодные светильники в прихожей, санузле и на лоджии/балконе.

Отделка класса White Box

Данный вид отделки квартиры широко распространен среди застройщиков. Он подразумевает, что квартира полностью подготовлена к чистовой отделке и все черновые работы выполнены.

Полы выровнены. Потолки подготовлены для отделки. Выполнена скрытая разводка электрики. Стояка ГВС/ХВС, канализация с заглушками и приборами учета.

Клиенту останется только выбрать отделочные материалы, избежав самые грязные и неприятные процессы, и ремонт готов.

 

Подробнее о проекте и условиях покупки уточняйте у менеджера отдела продаж.

Дата изменения: 25.08.2025
id 4121989
1 / 13
Юнтоловский пр., 43-55
застройщик
17 044 000 ₽
263 600 ₽/м2

Продается 3-комнатная квартира, 64,66 кв.м. по адресу: Россия, Санкт-Петербург, ЖК «Юнтолово». Квартира от Застройщика.Возможна покупка квартиры по льготным и специальным ипотечным программам.

Цена указана с учетом применения скидки.

Условия и актуальные ставки уточняйте у менеджера отдела продаж.

ПАРК-КВАРТАЛ – один из кварталов с индивидуальным смыслом. Квартал граничит с парками без пересечения транспортных артерий. В непосредственной близости к памятнику природы Юнтоловскому заказнику. Есть видовые квартиры на Финский залив.

Строит один застройщик, поэтому грамотно планирует улично-дорожную сеть, пешеходные зоны, парковые пространства. Целостность проекта без архитектурных нарушений. Вместе с вводом в эксплуатацию всего квартала будет введена поликлиника для детей и взрослых и детский сад (в границах квартала).

ПАРК-КВАРТАЛ спроектирован по принципам разумной организации пространства, когда все основные объекты инфраструктуры в шаговой доступности. Включает поликлинику для взрослых и детей с современным оборудованием, новый детский сад на 200 мест, крытую наземную парковку вместительностью до 500 машино-мест и коммерческие помещения на первых этажах жилых зданий, предлагающие широкий ассортимент товаров и услуг.

Преимущества:

? Оригинальные, европейские фасады от архитектурного бюро «А. Лен», известные своим выдержанным и гармоничным стилем

? Увеличенные оконные проёмы с живописными видами на Центральный парк и «гринфингер»

? Жилье у парка (граничит с Центральным парком и гринфингером)

? Закрытые дворы без машин (корпуса 3-6)

? Ландшафтный дизайн и арт-объекты на территории квартала

? Коммерция на первых этажах корпусов 3-6

? Высота потолков в квартирах 2,76 м

? Колясочные в каждой парадной

? Проходные парадные и безбарьерная среда

? Не более 6 квартир на этаже

? Лифтовое оборудование европейского бренда

? Яркие и стильные входные группы с крупной индикацией номера подъезда и козырьком

? Графичное оформление балконов и лоджий

? Контрастная цветовая гамма, декоративные вставки из кирпича

? Квартиры с чистовой отделкой «Комфорт» и White Box

Отделка класса Комфорт представлена в двух вариантах цветового исполнения.

? Включает в себя ламинат 32 класса с текстурой дерева и фаской, текстурированные обои под покраску, крашеный потолок, откосы, установку подоконников. Межкомнатные двери глухие, остекленная дверь в кухню.

? В санузле стены и пол отделаны керамической плиткой, установлены все сантехнические приборы, выполнена разводка и подключение воды, установлены латунные однорычажные смесители.

? Выполнена разводка электрики и установка конечных устройств электрофурнитуры.

? Светодиодные светильники в прихожей, санузле и на лоджии/балконе.

Отделка класса White Box

Данный вид отделки квартиры широко распространен среди застройщиков. Он подразумевает, что квартира полностью подготовлена к чистовой отделке и все черновые работы выполнены.

Полы выровнены. Потолки подготовлены для отделки. Выполнена скрытая разводка электрики. Стояка ГВС/ХВС, канализация с заглушками и приборами учета.

Клиенту останется только выбрать отделочные материалы, избежав самые грязные и неприятные процессы, и ремонт готов.

 

Подробнее о проекте и условиях покупки уточняйте у менеджера отдела продаж.

Дата изменения: 25.08.2025
id 4120647
1 / 13
Юнтоловский пр., 43-55
застройщик
16 161 000 ₽
249 945 ₽/м2

Продается 3-комнатная квартира, 64,66 кв.м. по адресу: Россия, Санкт-Петербург, ЖК «Юнтолово». Квартира от Застройщика.Возможна покупка квартиры по льготным и специальным ипотечным программам.

Цена указана с учетом применения скидки.

Условия и актуальные ставки уточняйте у менеджера отдела продаж.

ПАРК-КВАРТАЛ – один из кварталов с индивидуальным смыслом. Квартал граничит с парками без пересечения транспортных артерий. В непосредственной близости к памятнику природы Юнтоловскому заказнику. Есть видовые квартиры на Финский залив.

Строит один застройщик, поэтому грамотно планирует улично-дорожную сеть, пешеходные зоны, парковые пространства. Целостность проекта без архитектурных нарушений. Вместе с вводом в эксплуатацию всего квартала будет введена поликлиника для детей и взрослых и детский сад (в границах квартала).

ПАРК-КВАРТАЛ спроектирован по принципам разумной организации пространства, когда все основные объекты инфраструктуры в шаговой доступности. Включает поликлинику для взрослых и детей с современным оборудованием, новый детский сад на 200 мест, крытую наземную парковку вместительностью до 500 машино-мест и коммерческие помещения на первых этажах жилых зданий, предлагающие широкий ассортимент товаров и услуг.

Преимущества:

? Оригинальные, европейские фасады от архитектурного бюро «А. Лен», известные своим выдержанным и гармоничным стилем

? Увеличенные оконные проёмы с живописными видами на Центральный парк и «гринфингер»

? Жилье у парка (граничит с Центральным парком и гринфингером)

? Закрытые дворы без машин (корпуса 3-6)

? Ландшафтный дизайн и арт-объекты на территории квартала

? Коммерция на первых этажах корпусов 3-6

? Высота потолков в квартирах 2,76 м

? Колясочные в каждой парадной

? Проходные парадные и безбарьерная среда

? Не более 6 квартир на этаже

? Лифтовое оборудование европейского бренда

? Яркие и стильные входные группы с крупной индикацией номера подъезда и козырьком

? Графичное оформление балконов и лоджий

? Контрастная цветовая гамма, декоративные вставки из кирпича

? Квартиры с чистовой отделкой «Комфорт» и White Box

Отделка класса Комфорт представлена в двух вариантах цветового исполнения.

? Включает в себя ламинат 32 класса с текстурой дерева и фаской, текстурированные обои под покраску, крашеный потолок, откосы, установку подоконников. Межкомнатные двери глухие, остекленная дверь в кухню.

? В санузле стены и пол отделаны керамической плиткой, установлены все сантехнические приборы, выполнена разводка и подключение воды, установлены латунные однорычажные смесители.

? Выполнена разводка электрики и установка конечных устройств электрофурнитуры.

? Светодиодные светильники в прихожей, санузле и на лоджии/балконе.

Отделка класса White Box

Данный вид отделки квартиры широко распространен среди застройщиков. Он подразумевает, что квартира полностью подготовлена к чистовой отделке и все черновые работы выполнены.

Полы выровнены. Потолки подготовлены для отделки. Выполнена скрытая разводка электрики. Стояка ГВС/ХВС, канализация с заглушками и приборами учета.

Клиенту останется только выбрать отделочные материалы, избежав самые грязные и неприятные процессы, и ремонт готов.

 

Подробнее о проекте и условиях покупки уточняйте у менеджера отдела продаж.

Дата изменения: 25.08.2025
id 4120664
1 / 13
Юнтоловский пр., 43-55
застройщик
16 057 000 ₽
248 330 ₽/м2

Продается 3-комнатная квартира, 64,66 кв.м. по адресу: Россия, Санкт-Петербург, ЖК «Юнтолово». Квартира от Застройщика.Возможна покупка квартиры по льготным и специальным ипотечным программам.

Цена указана с учетом применения скидки.

Условия и актуальные ставки уточняйте у менеджера отдела продаж.

ПАРК-КВАРТАЛ – один из кварталов с индивидуальным смыслом. Квартал граничит с парками без пересечения транспортных артерий. В непосредственной близости к памятнику природы Юнтоловскому заказнику. Есть видовые квартиры на Финский залив.

Строит один застройщик, поэтому грамотно планирует улично-дорожную сеть, пешеходные зоны, парковые пространства. Целостность проекта без архитектурных нарушений. Вместе с вводом в эксплуатацию всего квартала будет введена поликлиника для детей и взрослых и детский сад (в границах квартала).

ПАРК-КВАРТАЛ спроектирован по принципам разумной организации пространства, когда все основные объекты инфраструктуры в шаговой доступности. Включает поликлинику для взрослых и детей с современным оборудованием, новый детский сад на 200 мест, крытую наземную парковку вместительностью до 500 машино-мест и коммерческие помещения на первых этажах жилых зданий, предлагающие широкий ассортимент товаров и услуг.

Преимущества:

? Оригинальные, европейские фасады от архитектурного бюро «А. Лен», известные своим выдержанным и гармоничным стилем

? Увеличенные оконные проёмы с живописными видами на Центральный парк и «гринфингер»

? Жилье у парка (граничит с Центральным парком и гринфингером)

? Закрытые дворы без машин (корпуса 3-6)

? Ландшафтный дизайн и арт-объекты на территории квартала

? Коммерция на первых этажах корпусов 3-6

? Высота потолков в квартирах 2,76 м

? Колясочные в каждой парадной

? Проходные парадные и безбарьерная среда

? Не более 6 квартир на этаже

? Лифтовое оборудование европейского бренда

? Яркие и стильные входные группы с крупной индикацией номера подъезда и козырьком

? Графичное оформление балконов и лоджий

? Контрастная цветовая гамма, декоративные вставки из кирпича

? Квартиры с чистовой отделкой «Комфорт» и White Box

Отделка класса Комфорт представлена в двух вариантах цветового исполнения.

? Включает в себя ламинат 32 класса с текстурой дерева и фаской, текстурированные обои под покраску, крашеный потолок, откосы, установку подоконников. Межкомнатные двери глухие, остекленная дверь в кухню.

? В санузле стены и пол отделаны керамической плиткой, установлены все сантехнические приборы, выполнена разводка и подключение воды, установлены латунные однорычажные смесители.

? Выполнена разводка электрики и установка конечных устройств электрофурнитуры.

? Светодиодные светильники в прихожей, санузле и на лоджии/балконе.

Отделка класса White Box

Данный вид отделки квартиры широко распространен среди застройщиков. Он подразумевает, что квартира полностью подготовлена к чистовой отделке и все черновые работы выполнены.

Полы выровнены. Потолки подготовлены для отделки. Выполнена скрытая разводка электрики. Стояка ГВС/ХВС, канализация с заглушками и приборами учета.

Клиенту останется только выбрать отделочные материалы, избежав самые грязные и неприятные процессы, и ремонт готов.

 

Подробнее о проекте и условиях покупки уточняйте у менеджера отдела продаж.

Дата изменения: 25.08.2025
id 4136540
1 / 13
Юнтоловский пр., 43-55
застройщик
16 106 000 ₽
249 090 ₽/м2

Продается 3-комнатная квартира, 64,66 кв.м. по адресу: Россия, Санкт-Петербург, ЖК «Юнтолово». Квартира от Застройщика.Возможна покупка квартиры по льготным и специальным ипотечным программам.

Цена указана с учетом применения скидки.

Условия и актуальные ставки уточняйте у менеджера отдела продаж.

ПАРК-КВАРТАЛ – один из кварталов с индивидуальным смыслом. Квартал граничит с парками без пересечения транспортных артерий. В непосредственной близости к памятнику природы Юнтоловскому заказнику. Есть видовые квартиры на Финский залив.

Строит один застройщик, поэтому грамотно планирует улично-дорожную сеть, пешеходные зоны, парковые пространства. Целостность проекта без архитектурных нарушений. Вместе с вводом в эксплуатацию всего квартала будет введена поликлиника для детей и взрослых и детский сад (в границах квартала).

ПАРК-КВАРТАЛ спроектирован по принципам разумной организации пространства, когда все основные объекты инфраструктуры в шаговой доступности. Включает поликлинику для взрослых и детей с современным оборудованием, новый детский сад на 200 мест, крытую наземную парковку вместительностью до 500 машино-мест и коммерческие помещения на первых этажах жилых зданий, предлагающие широкий ассортимент товаров и услуг.

Преимущества:

? Оригинальные, европейские фасады от архитектурного бюро «А. Лен», известные своим выдержанным и гармоничным стилем

? Увеличенные оконные проёмы с живописными видами на Центральный парк и «гринфингер»

? Жилье у парка (граничит с Центральным парком и гринфингером)

? Закрытые дворы без машин (корпуса 3-6)

? Ландшафтный дизайн и арт-объекты на территории квартала

? Коммерция на первых этажах корпусов 3-6

? Высота потолков в квартирах 2,76 м

? Колясочные в каждой парадной

? Проходные парадные и безбарьерная среда

? Не более 6 квартир на этаже

? Лифтовое оборудование европейского бренда

? Яркие и стильные входные группы с крупной индикацией номера подъезда и козырьком

? Графичное оформление балконов и лоджий

? Контрастная цветовая гамма, декоративные вставки из кирпича

? Квартиры с чистовой отделкой «Комфорт» и White Box

Отделка класса Комфорт представлена в двух вариантах цветового исполнения.

? Включает в себя ламинат 32 класса с текстурой дерева и фаской, текстурированные обои под покраску, крашеный потолок, откосы, установку подоконников. Межкомнатные двери глухие, остекленная дверь в кухню.

? В санузле стены и пол отделаны керамической плиткой, установлены все сантехнические приборы, выполнена разводка и подключение воды, установлены латунные однорычажные смесители.

? Выполнена разводка электрики и установка конечных устройств электрофурнитуры.

? Светодиодные светильники в прихожей, санузле и на лоджии/балконе.

Отделка класса White Box

Данный вид отделки квартиры широко распространен среди застройщиков. Он подразумевает, что квартира полностью подготовлена к чистовой отделке и все черновые работы выполнены.

Полы выровнены. Потолки подготовлены для отделки. Выполнена скрытая разводка электрики. Стояка ГВС/ХВС, канализация с заглушками и приборами учета.

Клиенту останется только выбрать отделочные материалы, избежав самые грязные и неприятные процессы, и ремонт готов.

 

Подробнее о проекте и условиях покупки уточняйте у менеджера отдела продаж.

Дата изменения: 22.08.2025
id 4120616
1 / 14
Юнтоловский пр., 43-55
застройщик
15 549 000 ₽
241 775 ₽/м2

Продается 3-комнатная квартира, 64,31 кв.м. по адресу: Россия, Санкт-Петербург, ЖК «Юнтолово». Квартира от Застройщика.Возможна покупка квартиры по льготным и специальным ипотечным программам.

Цена указана с учетом применения скидки.

Условия и актуальные ставки уточняйте у менеджера отдела продаж.

ПАРК-КВАРТАЛ – один из кварталов с индивидуальным смыслом. Квартал граничит с парками без пересечения транспортных артерий. В непосредственной близости к памятнику природы Юнтоловскому заказнику. Есть видовые квартиры на Финский залив.

Строит один застройщик, поэтому грамотно планирует улично-дорожную сеть, пешеходные зоны, парковые пространства. Целостность проекта без архитектурных нарушений. Вместе с вводом в эксплуатацию всего квартала будет введена поликлиника для детей и взрослых и детский сад (в границах квартала).

ПАРК-КВАРТАЛ спроектирован по принципам разумной организации пространства, когда все основные объекты инфраструктуры в шаговой доступности. Включает поликлинику для взрослых и детей с современным оборудованием, новый детский сад на 200 мест, крытую наземную парковку вместительностью до 500 машино-мест и коммерческие помещения на первых этажах жилых зданий, предлагающие широкий ассортимент товаров и услуг.

Преимущества:

? Оригинальные, европейские фасады от архитектурного бюро «А. Лен», известные своим выдержанным и гармоничным стилем

? Увеличенные оконные проёмы с живописными видами на Центральный парк и «гринфингер»

? Жилье у парка (граничит с Центральным парком и гринфингером)

? Закрытые дворы без машин (корпуса 3-6)

? Ландшафтный дизайн и арт-объекты на территории квартала

? Коммерция на первых этажах корпусов 3-6

? Высота потолков в квартирах 2,76 м

? Колясочные в каждой парадной

? Проходные парадные и безбарьерная среда

? Не более 6 квартир на этаже

? Лифтовое оборудование европейского бренда

? Яркие и стильные входные группы с крупной индикацией номера подъезда и козырьком

? Графичное оформление балконов и лоджий

? Контрастная цветовая гамма, декоративные вставки из кирпича

? Квартиры с чистовой отделкой «Комфорт» и White Box

Отделка класса Комфорт представлена в двух вариантах цветового исполнения.

? Включает в себя ламинат 32 класса с текстурой дерева и фаской, текстурированные обои под покраску, крашеный потолок, откосы, установку подоконников. Межкомнатные двери глухие, остекленная дверь в кухню.

? В санузле стены и пол отделаны керамической плиткой, установлены все сантехнические приборы, выполнена разводка и подключение воды, установлены латунные однорычажные смесители.

? Выполнена разводка электрики и установка конечных устройств электрофурнитуры.

? Светодиодные светильники в прихожей, санузле и на лоджии/балконе.

Отделка класса White Box

Данный вид отделки квартиры широко распространен среди застройщиков. Он подразумевает, что квартира полностью подготовлена к чистовой отделке и все черновые работы выполнены.

Полы выровнены. Потолки подготовлены для отделки. Выполнена скрытая разводка электрики. Стояка ГВС/ХВС, канализация с заглушками и приборами учета.

Клиенту останется только выбрать отделочные материалы, избежав самые грязные и неприятные процессы, и ремонт готов.

 

Подробнее о проекте и условиях покупки уточняйте у менеджера отдела продаж.

Дата изменения: 22.08.2025
id 4136158
1 / 14
Юнтоловский пр., 43-55
застройщик
15 241 000 ₽
240 350 ₽/м2

Продается 3-комнатная квартира, 63,41 кв.м. по адресу: Россия, Санкт-Петербург, ЖК «Юнтолово». Квартира от Застройщика.Возможна покупка квартиры по льготным и специальным ипотечным программам.

Цена указана с учетом применения скидки.

Условия и актуальные ставки уточняйте у менеджера отдела продаж.

ПАРК-КВАРТАЛ – один из кварталов с индивидуальным смыслом. Квартал граничит с парками без пересечения транспортных артерий. В непосредственной близости к памятнику природы Юнтоловскому заказнику. Есть видовые квартиры на Финский залив.

Строит один застройщик, поэтому грамотно планирует улично-дорожную сеть, пешеходные зоны, парковые пространства. Целостность проекта без архитектурных нарушений. Вместе с вводом в эксплуатацию всего квартала будет введена поликлиника для детей и взрослых и детский сад (в границах квартала).

ПАРК-КВАРТАЛ спроектирован по принципам разумной организации пространства, когда все основные объекты инфраструктуры в шаговой доступности. Включает поликлинику для взрослых и детей с современным оборудованием, новый детский сад на 200 мест, крытую наземную парковку вместительностью до 500 машино-мест и коммерческие помещения на первых этажах жилых зданий, предлагающие широкий ассортимент товаров и услуг.

Преимущества:

? Оригинальные, европейские фасады от архитектурного бюро «А. Лен», известные своим выдержанным и гармоничным стилем

? Увеличенные оконные проёмы с живописными видами на Центральный парк и «гринфингер»

? Жилье у парка (граничит с Центральным парком и гринфингером)

? Закрытые дворы без машин (корпуса 3-6)

? Ландшафтный дизайн и арт-объекты на территории квартала

? Коммерция на первых этажах корпусов 3-6

? Высота потолков в квартирах 2,76 м

? Колясочные в каждой парадной

? Проходные парадные и безбарьерная среда

? Не более 6 квартир на этаже

? Лифтовое оборудование европейского бренда

? Яркие и стильные входные группы с крупной индикацией номера подъезда и козырьком

? Графичное оформление балконов и лоджий

? Контрастная цветовая гамма, декоративные вставки из кирпича

? Квартиры с чистовой отделкой «Комфорт» и White Box

Отделка класса Комфорт представлена в двух вариантах цветового исполнения.

? Включает в себя ламинат 32 класса с текстурой дерева и фаской, текстурированные обои под покраску, крашеный потолок, откосы, установку подоконников. Межкомнатные двери глухие, остекленная дверь в кухню.

? В санузле стены и пол отделаны керамической плиткой, установлены все сантехнические приборы, выполнена разводка и подключение воды, установлены латунные однорычажные смесители.

? Выполнена разводка электрики и установка конечных устройств электрофурнитуры.

? Светодиодные светильники в прихожей, санузле и на лоджии/балконе.

Отделка класса White Box

Данный вид отделки квартиры широко распространен среди застройщиков. Он подразумевает, что квартира полностью подготовлена к чистовой отделке и все черновые работы выполнены.

Полы выровнены. Потолки подготовлены для отделки. Выполнена скрытая разводка электрики. Стояка ГВС/ХВС, канализация с заглушками и приборами учета.

Клиенту останется только выбрать отделочные материалы, избежав самые грязные и неприятные процессы, и ремонт готов.

 

Подробнее о проекте и условиях покупки уточняйте у менеджера отдела продаж.

Дата изменения: 22.08.2025
id 4145080
1 / 14
Юнтоловский пр., 43-55
застройщик
15 241 000 ₽
240 350 ₽/м2

Продается 3-комнатная квартира, 63,41 кв.м. по адресу: Россия, Санкт-Петербург, ЖК «Юнтолово». Квартира от Застройщика.Возможна покупка квартиры по льготным и специальным ипотечным программам.

Цена указана с учетом применения скидки.

Условия и актуальные ставки уточняйте у менеджера отдела продаж.

ПАРК-КВАРТАЛ – один из кварталов с индивидуальным смыслом. Квартал граничит с парками без пересечения транспортных артерий. В непосредственной близости к памятнику природы Юнтоловскому заказнику. Есть видовые квартиры на Финский залив.

Строит один застройщик, поэтому грамотно планирует улично-дорожную сеть, пешеходные зоны, парковые пространства. Целостность проекта без архитектурных нарушений. Вместе с вводом в эксплуатацию всего квартала будет введена поликлиника для детей и взрослых и детский сад (в границах квартала).

ПАРК-КВАРТАЛ спроектирован по принципам разумной организации пространства, когда все основные объекты инфраструктуры в шаговой доступности. Включает поликлинику для взрослых и детей с современным оборудованием, новый детский сад на 200 мест, крытую наземную парковку вместительностью до 500 машино-мест и коммерческие помещения на первых этажах жилых зданий, предлагающие широкий ассортимент товаров и услуг.

Преимущества:

? Оригинальные, европейские фасады от архитектурного бюро «А. Лен», известные своим выдержанным и гармоничным стилем

? Увеличенные оконные проёмы с живописными видами на Центральный парк и «гринфингер»

? Жилье у парка (граничит с Центральным парком и гринфингером)

? Закрытые дворы без машин (корпуса 3-6)

? Ландшафтный дизайн и арт-объекты на территории квартала

? Коммерция на первых этажах корпусов 3-6

? Высота потолков в квартирах 2,76 м

? Колясочные в каждой парадной

? Проходные парадные и безбарьерная среда

? Не более 6 квартир на этаже

? Лифтовое оборудование европейского бренда

? Яркие и стильные входные группы с крупной индикацией номера подъезда и козырьком

? Графичное оформление балконов и лоджий

? Контрастная цветовая гамма, декоративные вставки из кирпича

? Квартиры с чистовой отделкой «Комфорт» и White Box

Отделка класса Комфорт представлена в двух вариантах цветового исполнения.

? Включает в себя ламинат 32 класса с текстурой дерева и фаской, текстурированные обои под покраску, крашеный потолок, откосы, установку подоконников. Межкомнатные двери глухие, остекленная дверь в кухню.

? В санузле стены и пол отделаны керамической плиткой, установлены все сантехнические приборы, выполнена разводка и подключение воды, установлены латунные однорычажные смесители.

? Выполнена разводка электрики и установка конечных устройств электрофурнитуры.

? Светодиодные светильники в прихожей, санузле и на лоджии/балконе.

Отделка класса White Box

Данный вид отделки квартиры широко распространен среди застройщиков. Он подразумевает, что квартира полностью подготовлена к чистовой отделке и все черновые работы выполнены.

Полы выровнены. Потолки подготовлены для отделки. Выполнена скрытая разводка электрики. Стояка ГВС/ХВС, канализация с заглушками и приборами учета.

Клиенту останется только выбрать отделочные материалы, избежав самые грязные и неприятные процессы, и ремонт готов.

 

Подробнее о проекте и условиях покупки уточняйте у менеджера отдела продаж.

Дата изменения: 22.08.2025
id 4145039
1 / 14
Юнтоловский пр., 43-55
застройщик
15 210 000 ₽
239 875 ₽/м2

Продается 3-комнатная квартира, 63,41 кв.м. по адресу: Россия, Санкт-Петербург, ЖК «Юнтолово». Квартира от Застройщика.Возможна покупка квартиры по льготным и специальным ипотечным программам.

Цена указана с учетом применения скидки.

Условия и актуальные ставки уточняйте у менеджера отдела продаж.

ПАРК-КВАРТАЛ – один из кварталов с индивидуальным смыслом. Квартал граничит с парками без пересечения транспортных артерий. В непосредственной близости к памятнику природы Юнтоловскому заказнику. Есть видовые квартиры на Финский залив.

Строит один застройщик, поэтому грамотно планирует улично-дорожную сеть, пешеходные зоны, парковые пространства. Целостность проекта без архитектурных нарушений. Вместе с вводом в эксплуатацию всего квартала будет введена поликлиника для детей и взрослых и детский сад (в границах квартала).

ПАРК-КВАРТАЛ спроектирован по принципам разумной организации пространства, когда все основные объекты инфраструктуры в шаговой доступности. Включает поликлинику для взрослых и детей с современным оборудованием, новый детский сад на 200 мест, крытую наземную парковку вместительностью до 500 машино-мест и коммерческие помещения на первых этажах жилых зданий, предлагающие широкий ассортимент товаров и услуг.

Преимущества:

? Оригинальные, европейские фасады от архитектурного бюро «А. Лен», известные своим выдержанным и гармоничным стилем

? Увеличенные оконные проёмы с живописными видами на Центральный парк и «гринфингер»

? Жилье у парка (граничит с Центральным парком и гринфингером)

? Закрытые дворы без машин (корпуса 3-6)

? Ландшафтный дизайн и арт-объекты на территории квартала

? Коммерция на первых этажах корпусов 3-6

? Высота потолков в квартирах 2,76 м

? Колясочные в каждой парадной

? Проходные парадные и безбарьерная среда

? Не более 6 квартир на этаже

? Лифтовое оборудование европейского бренда

? Яркие и стильные входные группы с крупной индикацией номера подъезда и козырьком

? Графичное оформление балконов и лоджий

? Контрастная цветовая гамма, декоративные вставки из кирпича

? Квартиры с чистовой отделкой «Комфорт» и White Box

Отделка класса Комфорт представлена в двух вариантах цветового исполнения.

? Включает в себя ламинат 32 класса с текстурой дерева и фаской, текстурированные обои под покраску, крашеный потолок, откосы, установку подоконников. Межкомнатные двери глухие, остекленная дверь в кухню.

? В санузле стены и пол отделаны керамической плиткой, установлены все сантехнические приборы, выполнена разводка и подключение воды, установлены латунные однорычажные смесители.

? Выполнена разводка электрики и установка конечных устройств электрофурнитуры.

? Светодиодные светильники в прихожей, санузле и на лоджии/балконе.

Отделка класса White Box

Данный вид отделки квартиры широко распространен среди застройщиков. Он подразумевает, что квартира полностью подготовлена к чистовой отделке и все черновые работы выполнены.

Полы выровнены. Потолки подготовлены для отделки. Выполнена скрытая разводка электрики. Стояка ГВС/ХВС, канализация с заглушками и приборами учета.

Клиенту останется только выбрать отделочные материалы, избежав самые грязные и неприятные процессы, и ремонт готов.

 

Подробнее о проекте и условиях покупки уточняйте у менеджера отдела продаж.

Дата изменения: 22.08.2025
id 4145048
1 / 14
Юнтоловский пр., 43-55
застройщик
15 210 000 ₽
239 875 ₽/м2

Продается 3-комнатная квартира, 63,41 кв.м. по адресу: Россия, Санкт-Петербург, ЖК «Юнтолово». Квартира от Застройщика.Возможна покупка квартиры по льготным и специальным ипотечным программам.

Цена указана с учетом применения скидки.

Условия и актуальные ставки уточняйте у менеджера отдела продаж.

ПАРК-КВАРТАЛ – один из кварталов с индивидуальным смыслом. Квартал граничит с парками без пересечения транспортных артерий. В непосредственной близости к памятнику природы Юнтоловскому заказнику. Есть видовые квартиры на Финский залив.

Строит один застройщик, поэтому грамотно планирует улично-дорожную сеть, пешеходные зоны, парковые пространства. Целостность проекта без архитектурных нарушений. Вместе с вводом в эксплуатацию всего квартала будет введена поликлиника для детей и взрослых и детский сад (в границах квартала).

ПАРК-КВАРТАЛ спроектирован по принципам разумной организации пространства, когда все основные объекты инфраструктуры в шаговой доступности. Включает поликлинику для взрослых и детей с современным оборудованием, новый детский сад на 200 мест, крытую наземную парковку вместительностью до 500 машино-мест и коммерческие помещения на первых этажах жилых зданий, предлагающие широкий ассортимент товаров и услуг.

Преимущества:

? Оригинальные, европейские фасады от архитектурного бюро «А. Лен», известные своим выдержанным и гармоничным стилем

? Увеличенные оконные проёмы с живописными видами на Центральный парк и «гринфингер»

? Жилье у парка (граничит с Центральным парком и гринфингером)

? Закрытые дворы без машин (корпуса 3-6)

? Ландшафтный дизайн и арт-объекты на территории квартала

? Коммерция на первых этажах корпусов 3-6

? Высота потолков в квартирах 2,76 м

? Колясочные в каждой парадной

? Проходные парадные и безбарьерная среда

? Не более 6 квартир на этаже

? Лифтовое оборудование европейского бренда

? Яркие и стильные входные группы с крупной индикацией номера подъезда и козырьком

? Графичное оформление балконов и лоджий

? Контрастная цветовая гамма, декоративные вставки из кирпича

? Квартиры с чистовой отделкой «Комфорт» и White Box

Отделка класса Комфорт представлена в двух вариантах цветового исполнения.

? Включает в себя ламинат 32 класса с текстурой дерева и фаской, текстурированные обои под покраску, крашеный потолок, откосы, установку подоконников. Межкомнатные двери глухие, остекленная дверь в кухню.

? В санузле стены и пол отделаны керамической плиткой, установлены все сантехнические приборы, выполнена разводка и подключение воды, установлены латунные однорычажные смесители.

? Выполнена разводка электрики и установка конечных устройств электрофурнитуры.

? Светодиодные светильники в прихожей, санузле и на лоджии/балконе.

Отделка класса White Box

Данный вид отделки квартиры широко распространен среди застройщиков. Он подразумевает, что квартира полностью подготовлена к чистовой отделке и все черновые работы выполнены.

Полы выровнены. Потолки подготовлены для отделки. Выполнена скрытая разводка электрики. Стояка ГВС/ХВС, канализация с заглушками и приборами учета.

Клиенту останется только выбрать отделочные материалы, избежав самые грязные и неприятные процессы, и ремонт готов.

 

Подробнее о проекте и условиях покупки уточняйте у менеджера отдела продаж.

Дата изменения: 22.08.2025
id 4145021
1 / 14
Юнтоловский пр., 43-55
застройщик
14 365 000 ₽
232 750 ₽/м2

Продается 3-комнатная квартира, 61,72 кв.м. по адресу: Россия, Санкт-Петербург, ЖК «Юнтолово». Квартира от Застройщика.Возможна покупка квартиры по льготным и специальным ипотечным программам.

Цена указана с учетом применения скидки.

Условия и актуальные ставки уточняйте у менеджера отдела продаж.

ПАРК-КВАРТАЛ – один из кварталов с индивидуальным смыслом. Квартал граничит с парками без пересечения транспортных артерий. В непосредственной близости к памятнику природы Юнтоловскому заказнику. Есть видовые квартиры на Финский залив.

Строит один застройщик, поэтому грамотно планирует улично-дорожную сеть, пешеходные зоны, парковые пространства. Целостность проекта без архитектурных нарушений. Вместе с вводом в эксплуатацию всего квартала будет введена поликлиника для детей и взрослых и детский сад (в границах квартала).

ПАРК-КВАРТАЛ спроектирован по принципам разумной организации пространства, когда все основные объекты инфраструктуры в шаговой доступности. Включает поликлинику для взрослых и детей с современным оборудованием, новый детский сад на 200 мест, крытую наземную парковку вместительностью до 500 машино-мест и коммерческие помещения на первых этажах жилых зданий, предлагающие широкий ассортимент товаров и услуг.

Преимущества:

? Оригинальные, европейские фасады от архитектурного бюро «А. Лен», известные своим выдержанным и гармоничным стилем

? Увеличенные оконные проёмы с живописными видами на Центральный парк и «гринфингер»

? Жилье у парка (граничит с Центральным парком и гринфингером)

? Закрытые дворы без машин (корпуса 3-6)

? Ландшафтный дизайн и арт-объекты на территории квартала

? Коммерция на первых этажах корпусов 3-6

? Высота потолков в квартирах 2,76 м

? Колясочные в каждой парадной

? Проходные парадные и безбарьерная среда

? Не более 6 квартир на этаже

? Лифтовое оборудование европейского бренда

? Яркие и стильные входные группы с крупной индикацией номера подъезда и козырьком

? Графичное оформление балконов и лоджий

? Контрастная цветовая гамма, декоративные вставки из кирпича

? Квартиры с чистовой отделкой «Комфорт» и White Box

Отделка класса Комфорт представлена в двух вариантах цветового исполнения.

? Включает в себя ламинат 32 класса с текстурой дерева и фаской, текстурированные обои под покраску, крашеный потолок, откосы, установку подоконников. Межкомнатные двери глухие, остекленная дверь в кухню.

? В санузле стены и пол отделаны керамической плиткой, установлены все сантехнические приборы, выполнена разводка и подключение воды, установлены латунные однорычажные смесители.

? Выполнена разводка электрики и установка конечных устройств электрофурнитуры.

? Светодиодные светильники в прихожей, санузле и на лоджии/балконе.

Отделка класса White Box

Данный вид отделки квартиры широко распространен среди застройщиков. Он подразумевает, что квартира полностью подготовлена к чистовой отделке и все черновые работы выполнены.

Полы выровнены. Потолки подготовлены для отделки. Выполнена скрытая разводка электрики. Стояка ГВС/ХВС, канализация с заглушками и приборами учета.

Клиенту останется только выбрать отделочные материалы, избежав самые грязные и неприятные процессы, и ремонт готов.

 

Подробнее о проекте и условиях покупки уточняйте у менеджера отдела продаж.

Дата изменения: 22.08.2025
id 4145058
1 / 14
Юнтоловский пр., 43-55
застройщик
15 210 000 ₽
239 875 ₽/м2

Продается 3-комнатная квартира, 63,41 кв.м. по адресу: Россия, Санкт-Петербург, ЖК «Юнтолово». Квартира от Застройщика.Возможна покупка квартиры по льготным и специальным ипотечным программам.

Цена указана с учетом применения скидки.

Условия и актуальные ставки уточняйте у менеджера отдела продаж.

ПАРК-КВАРТАЛ – один из кварталов с индивидуальным смыслом. Квартал граничит с парками без пересечения транспортных артерий. В непосредственной близости к памятнику природы Юнтоловскому заказнику. Есть видовые квартиры на Финский залив.

Строит один застройщик, поэтому грамотно планирует улично-дорожную сеть, пешеходные зоны, парковые пространства. Целостность проекта без архитектурных нарушений. Вместе с вводом в эксплуатацию всего квартала будет введена поликлиника для детей и взрослых и детский сад (в границах квартала).

ПАРК-КВАРТАЛ спроектирован по принципам разумной организации пространства, когда все основные объекты инфраструктуры в шаговой доступности. Включает поликлинику для взрослых и детей с современным оборудованием, новый детский сад на 200 мест, крытую наземную парковку вместительностью до 500 машино-мест и коммерческие помещения на первых этажах жилых зданий, предлагающие широкий ассортимент товаров и услуг.

Преимущества:

? Оригинальные, европейские фасады от архитектурного бюро «А. Лен», известные своим выдержанным и гармоничным стилем

? Увеличенные оконные проёмы с живописными видами на Центральный парк и «гринфингер»

? Жилье у парка (граничит с Центральным парком и гринфингером)

? Закрытые дворы без машин (корпуса 3-6)

? Ландшафтный дизайн и арт-объекты на территории квартала

? Коммерция на первых этажах корпусов 3-6

? Высота потолков в квартирах 2,76 м

? Колясочные в каждой парадной

? Проходные парадные и безбарьерная среда

? Не более 6 квартир на этаже

? Лифтовое оборудование европейского бренда

? Яркие и стильные входные группы с крупной индикацией номера подъезда и козырьком

? Графичное оформление балконов и лоджий

? Контрастная цветовая гамма, декоративные вставки из кирпича

? Квартиры с чистовой отделкой «Комфорт» и White Box

Отделка класса Комфорт представлена в двух вариантах цветового исполнения.

? Включает в себя ламинат 32 класса с текстурой дерева и фаской, текстурированные обои под покраску, крашеный потолок, откосы, установку подоконников. Межкомнатные двери глухие, остекленная дверь в кухню.

? В санузле стены и пол отделаны керамической плиткой, установлены все сантехнические приборы, выполнена разводка и подключение воды, установлены латунные однорычажные смесители.

? Выполнена разводка электрики и установка конечных устройств электрофурнитуры.

? Светодиодные светильники в прихожей, санузле и на лоджии/балконе.

Отделка класса White Box

Данный вид отделки квартиры широко распространен среди застройщиков. Он подразумевает, что квартира полностью подготовлена к чистовой отделке и все черновые работы выполнены.

Полы выровнены. Потолки подготовлены для отделки. Выполнена скрытая разводка электрики. Стояка ГВС/ХВС, канализация с заглушками и приборами учета.

Клиенту останется только выбрать отделочные материалы, избежав самые грязные и неприятные процессы, и ремонт готов.

 

Подробнее о проекте и условиях покупки уточняйте у менеджера отдела продаж.

Дата изменения: 22.08.2025
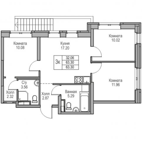
id 4136471
1 / 13
Юнтоловский пр., 43-55
застройщик
15 172 000 ₽
239 685 ₽/м2

Продается 3-комнатная квартира, 63,3 кв.м. по адресу: Россия, Санкт-Петербург, ЖК «Юнтолово». Квартира от Застройщика.Возможна покупка квартиры по льготным и специальным ипотечным программам.

Цена указана с учетом применения скидки.

Условия и актуальные ставки уточняйте у менеджера отдела продаж.

ПАРК-КВАРТАЛ – один из кварталов с индивидуальным смыслом. Квартал граничит с парками без пересечения транспортных артерий. В непосредственной близости к памятнику природы Юнтоловскому заказнику. Есть видовые квартиры на Финский залив.

Строит один застройщик, поэтому грамотно планирует улично-дорожную сеть, пешеходные зоны, парковые пространства. Целостность проекта без архитектурных нарушений. Вместе с вводом в эксплуатацию всего квартала будет введена поликлиника для детей и взрослых и детский сад (в границах квартала).

ПАРК-КВАРТАЛ спроектирован по принципам разумной организации пространства, когда все основные объекты инфраструктуры в шаговой доступности. Включает поликлинику для взрослых и детей с современным оборудованием, новый детский сад на 200 мест, крытую наземную парковку вместительностью до 500 машино-мест и коммерческие помещения на первых этажах жилых зданий, предлагающие широкий ассортимент товаров и услуг.

Преимущества:

? Оригинальные, европейские фасады от архитектурного бюро «А. Лен», известные своим выдержанным и гармоничным стилем

? Увеличенные оконные проёмы с живописными видами на Центральный парк и «гринфингер»

? Жилье у парка (граничит с Центральным парком и гринфингером)

? Закрытые дворы без машин (корпуса 3-6)

? Ландшафтный дизайн и арт-объекты на территории квартала

? Коммерция на первых этажах корпусов 3-6

? Высота потолков в квартирах 2,76 м

? Колясочные в каждой парадной

? Проходные парадные и безбарьерная среда

? Не более 6 квартир на этаже

? Лифтовое оборудование европейского бренда

? Яркие и стильные входные группы с крупной индикацией номера подъезда и козырьком

? Графичное оформление балконов и лоджий

? Контрастная цветовая гамма, декоративные вставки из кирпича

? Квартиры с чистовой отделкой «Комфорт» и White Box

Отделка класса Комфорт представлена в двух вариантах цветового исполнения.

? Включает в себя ламинат 32 класса с текстурой дерева и фаской, текстурированные обои под покраску, крашеный потолок, откосы, установку подоконников. Межкомнатные двери глухие, остекленная дверь в кухню.

? В санузле стены и пол отделаны керамической плиткой, установлены все сантехнические приборы, выполнена разводка и подключение воды, установлены латунные однорычажные смесители.

? Выполнена разводка электрики и установка конечных устройств электрофурнитуры.

? Светодиодные светильники в прихожей, санузле и на лоджии/балконе.

Отделка класса White Box

Данный вид отделки квартиры широко распространен среди застройщиков. Он подразумевает, что квартира полностью подготовлена к чистовой отделке и все черновые работы выполнены.

Полы выровнены. Потолки подготовлены для отделки. Выполнена скрытая разводка электрики. Стояка ГВС/ХВС, канализация с заглушками и приборами учета.

Клиенту останется только выбрать отделочные материалы, избежав самые грязные и неприятные процессы, и ремонт готов.

 

Подробнее о проекте и условиях покупки уточняйте у менеджера отдела продаж.

Дата изменения: 22.08.2025
id 4145101
1 / 14
Юнтоловский пр., 43-55
застройщик
15 271 000 ₽
240 825 ₽/м2

Продается 3-комнатная квартира, 63,41 кв.м. по адресу: Россия, Санкт-Петербург, ЖК «Юнтолово». Квартира от Застройщика.Возможна покупка квартиры по льготным и специальным ипотечным программам.

Цена указана с учетом применения скидки.

Условия и актуальные ставки уточняйте у менеджера отдела продаж.

ПАРК-КВАРТАЛ – один из кварталов с индивидуальным смыслом. Квартал граничит с парками без пересечения транспортных артерий. В непосредственной близости к памятнику природы Юнтоловскому заказнику. Есть видовые квартиры на Финский залив.

Строит один застройщик, поэтому грамотно планирует улично-дорожную сеть, пешеходные зоны, парковые пространства. Целостность проекта без архитектурных нарушений. Вместе с вводом в эксплуатацию всего квартала будет введена поликлиника для детей и взрослых и детский сад (в границах квартала).

ПАРК-КВАРТАЛ спроектирован по принципам разумной организации пространства, когда все основные объекты инфраструктуры в шаговой доступности. Включает поликлинику для взрослых и детей с современным оборудованием, новый детский сад на 200 мест, крытую наземную парковку вместительностью до 500 машино-мест и коммерческие помещения на первых этажах жилых зданий, предлагающие широкий ассортимент товаров и услуг.

Преимущества:

? Оригинальные, европейские фасады от архитектурного бюро «А. Лен», известные своим выдержанным и гармоничным стилем

? Увеличенные оконные проёмы с живописными видами на Центральный парк и «гринфингер»

? Жилье у парка (граничит с Центральным парком и гринфингером)

? Закрытые дворы без машин (корпуса 3-6)

? Ландшафтный дизайн и арт-объекты на территории квартала

? Коммерция на первых этажах корпусов 3-6

? Высота потолков в квартирах 2,76 м

? Колясочные в каждой парадной

? Проходные парадные и безбарьерная среда

? Не более 6 квартир на этаже

? Лифтовое оборудование европейского бренда

? Яркие и стильные входные группы с крупной индикацией номера подъезда и козырьком

? Графичное оформление балконов и лоджий

? Контрастная цветовая гамма, декоративные вставки из кирпича

? Квартиры с чистовой отделкой «Комфорт» и White Box

Отделка класса Комфорт представлена в двух вариантах цветового исполнения.

? Включает в себя ламинат 32 класса с текстурой дерева и фаской, текстурированные обои под покраску, крашеный потолок, откосы, установку подоконников. Межкомнатные двери глухие, остекленная дверь в кухню.

? В санузле стены и пол отделаны керамической плиткой, установлены все сантехнические приборы, выполнена разводка и подключение воды, установлены латунные однорычажные смесители.

? Выполнена разводка электрики и установка конечных устройств электрофурнитуры.

? Светодиодные светильники в прихожей, санузле и на лоджии/балконе.

Отделка класса White Box

Данный вид отделки квартиры широко распространен среди застройщиков. Он подразумевает, что квартира полностью подготовлена к чистовой отделке и все черновые работы выполнены.

Полы выровнены. Потолки подготовлены для отделки. Выполнена скрытая разводка электрики. Стояка ГВС/ХВС, канализация с заглушками и приборами учета.

Клиенту останется только выбрать отделочные материалы, избежав самые грязные и неприятные процессы, и ремонт готов.

 

Подробнее о проекте и условиях покупки уточняйте у менеджера отдела продаж.

Дата изменения: 22.08.2025
id 4145069
1 / 14
Юнтоловский пр., 43-55
застройщик
15 241 000 ₽
240 350 ₽/м2

Продается 3-комнатная квартира, 63,41 кв.м. по адресу: Россия, Санкт-Петербург, ЖК «Юнтолово». Квартира от Застройщика.Возможна покупка квартиры по льготным и специальным ипотечным программам.

Цена указана с учетом применения скидки.

Условия и актуальные ставки уточняйте у менеджера отдела продаж.

ПАРК-КВАРТАЛ – один из кварталов с индивидуальным смыслом. Квартал граничит с парками без пересечения транспортных артерий. В непосредственной близости к памятнику природы Юнтоловскому заказнику. Есть видовые квартиры на Финский залив.

Строит один застройщик, поэтому грамотно планирует улично-дорожную сеть, пешеходные зоны, парковые пространства. Целостность проекта без архитектурных нарушений. Вместе с вводом в эксплуатацию всего квартала будет введена поликлиника для детей и взрослых и детский сад (в границах квартала).

ПАРК-КВАРТАЛ спроектирован по принципам разумной организации пространства, когда все основные объекты инфраструктуры в шаговой доступности. Включает поликлинику для взрослых и детей с современным оборудованием, новый детский сад на 200 мест, крытую наземную парковку вместительностью до 500 машино-мест и коммерческие помещения на первых этажах жилых зданий, предлагающие широкий ассортимент товаров и услуг.

Преимущества:

? Оригинальные, европейские фасады от архитектурного бюро «А. Лен», известные своим выдержанным и гармоничным стилем

? Увеличенные оконные проёмы с живописными видами на Центральный парк и «гринфингер»

? Жилье у парка (граничит с Центральным парком и гринфингером)

? Закрытые дворы без машин (корпуса 3-6)

? Ландшафтный дизайн и арт-объекты на территории квартала

? Коммерция на первых этажах корпусов 3-6

? Высота потолков в квартирах 2,76 м

? Колясочные в каждой парадной

? Проходные парадные и безбарьерная среда

? Не более 6 квартир на этаже

? Лифтовое оборудование европейского бренда

? Яркие и стильные входные группы с крупной индикацией номера подъезда и козырьком

? Графичное оформление балконов и лоджий

? Контрастная цветовая гамма, декоративные вставки из кирпича

? Квартиры с чистовой отделкой «Комфорт» и White Box

Отделка класса Комфорт представлена в двух вариантах цветового исполнения.

? Включает в себя ламинат 32 класса с текстурой дерева и фаской, текстурированные обои под покраску, крашеный потолок, откосы, установку подоконников. Межкомнатные двери глухие, остекленная дверь в кухню.

? В санузле стены и пол отделаны керамической плиткой, установлены все сантехнические приборы, выполнена разводка и подключение воды, установлены латунные однорычажные смесители.

? Выполнена разводка электрики и установка конечных устройств электрофурнитуры.

? Светодиодные светильники в прихожей, санузле и на лоджии/балконе.

Отделка класса White Box

Данный вид отделки квартиры широко распространен среди застройщиков. Он подразумевает, что квартира полностью подготовлена к чистовой отделке и все черновые работы выполнены.

Полы выровнены. Потолки подготовлены для отделки. Выполнена скрытая разводка электрики. Стояка ГВС/ХВС, канализация с заглушками и приборами учета.

Клиенту останется только выбрать отделочные материалы, избежав самые грязные и неприятные процессы, и ремонт готов.

 

Подробнее о проекте и условиях покупки уточняйте у менеджера отдела продаж.

Дата изменения: 22.08.2025
id 4136180
1 / 14
Юнтоловский пр., 43-55
застройщик
15 271 000 ₽
240 825 ₽/м2

Продается 3-комнатная квартира, 63,41 кв.м. по адресу: Россия, Санкт-Петербург, ЖК «Юнтолово». Квартира от Застройщика.Возможна покупка квартиры по льготным и специальным ипотечным программам.

Цена указана с учетом применения скидки.

Условия и актуальные ставки уточняйте у менеджера отдела продаж.

ПАРК-КВАРТАЛ – один из кварталов с индивидуальным смыслом. Квартал граничит с парками без пересечения транспортных артерий. В непосредственной близости к памятнику природы Юнтоловскому заказнику. Есть видовые квартиры на Финский залив.

Строит один застройщик, поэтому грамотно планирует улично-дорожную сеть, пешеходные зоны, парковые пространства. Целостность проекта без архитектурных нарушений. Вместе с вводом в эксплуатацию всего квартала будет введена поликлиника для детей и взрослых и детский сад (в границах квартала).

ПАРК-КВАРТАЛ спроектирован по принципам разумной организации пространства, когда все основные объекты инфраструктуры в шаговой доступности. Включает поликлинику для взрослых и детей с современным оборудованием, новый детский сад на 200 мест, крытую наземную парковку вместительностью до 500 машино-мест и коммерческие помещения на первых этажах жилых зданий, предлагающие широкий ассортимент товаров и услуг.

Преимущества:

? Оригинальные, европейские фасады от архитектурного бюро «А. Лен», известные своим выдержанным и гармоничным стилем

? Увеличенные оконные проёмы с живописными видами на Центральный парк и «гринфингер»

? Жилье у парка (граничит с Центральным парком и гринфингером)

? Закрытые дворы без машин (корпуса 3-6)

? Ландшафтный дизайн и арт-объекты на территории квартала

? Коммерция на первых этажах корпусов 3-6

? Высота потолков в квартирах 2,76 м

? Колясочные в каждой парадной

? Проходные парадные и безбарьерная среда

? Не более 6 квартир на этаже

? Лифтовое оборудование европейского бренда

? Яркие и стильные входные группы с крупной индикацией номера подъезда и козырьком

? Графичное оформление балконов и лоджий

? Контрастная цветовая гамма, декоративные вставки из кирпича

? Квартиры с чистовой отделкой «Комфорт» и White Box

Отделка класса Комфорт представлена в двух вариантах цветового исполнения.

? Включает в себя ламинат 32 класса с текстурой дерева и фаской, текстурированные обои под покраску, крашеный потолок, откосы, установку подоконников. Межкомнатные двери глухие, остекленная дверь в кухню.

? В санузле стены и пол отделаны керамической плиткой, установлены все сантехнические приборы, выполнена разводка и подключение воды, установлены латунные однорычажные смесители.

? Выполнена разводка электрики и установка конечных устройств электрофурнитуры.

? Светодиодные светильники в прихожей, санузле и на лоджии/балконе.

Отделка класса White Box

Данный вид отделки квартиры широко распространен среди застройщиков. Он подразумевает, что квартира полностью подготовлена к чистовой отделке и все черновые работы выполнены.

Полы выровнены. Потолки подготовлены для отделки. Выполнена скрытая разводка электрики. Стояка ГВС/ХВС, канализация с заглушками и приборами учета.

Клиенту останется только выбрать отделочные материалы, избежав самые грязные и неприятные процессы, и ремонт готов.

 

Подробнее о проекте и условиях покупки уточняйте у менеджера отдела продаж.

Дата изменения: 22.08.2025
id 4141857
1 / 14
Юнтоловский пр., 43-55
застройщик
15 241 000 ₽
240 350 ₽/м2

Продается 3-комнатная квартира, 63,41 кв.м. по адресу: Россия, Санкт-Петербург, ЖК «Юнтолово». Квартира от Застройщика.Возможна покупка квартиры по льготным и специальным ипотечным программам.

Цена указана с учетом применения скидки.

Условия и актуальные ставки уточняйте у менеджера отдела продаж.

ПАРК-КВАРТАЛ – один из кварталов с индивидуальным смыслом. Квартал граничит с парками без пересечения транспортных артерий. В непосредственной близости к памятнику природы Юнтоловскому заказнику. Есть видовые квартиры на Финский залив.

Строит один застройщик, поэтому грамотно планирует улично-дорожную сеть, пешеходные зоны, парковые пространства. Целостность проекта без архитектурных нарушений. Вместе с вводом в эксплуатацию всего квартала будет введена поликлиника для детей и взрослых и детский сад (в границах квартала).

ПАРК-КВАРТАЛ спроектирован по принципам разумной организации пространства, когда все основные объекты инфраструктуры в шаговой доступности. Включает поликлинику для взрослых и детей с современным оборудованием, новый детский сад на 200 мест, крытую наземную парковку вместительностью до 500 машино-мест и коммерческие помещения на первых этажах жилых зданий, предлагающие широкий ассортимент товаров и услуг.

Преимущества:

? Оригинальные, европейские фасады от архитектурного бюро «А. Лен», известные своим выдержанным и гармоничным стилем

? Увеличенные оконные проёмы с живописными видами на Центральный парк и «гринфингер»

? Жилье у парка (граничит с Центральным парком и гринфингером)

? Закрытые дворы без машин (корпуса 3-6)

? Ландшафтный дизайн и арт-объекты на территории квартала

? Коммерция на первых этажах корпусов 3-6

? Высота потолков в квартирах 2,76 м

? Колясочные в каждой парадной

? Проходные парадные и безбарьерная среда

? Не более 6 квартир на этаже

? Лифтовое оборудование европейского бренда

? Яркие и стильные входные группы с крупной индикацией номера подъезда и козырьком

? Графичное оформление балконов и лоджий

? Контрастная цветовая гамма, декоративные вставки из кирпича

? Квартиры с чистовой отделкой «Комфорт» и White Box

Отделка класса Комфорт представлена в двух вариантах цветового исполнения.

? Включает в себя ламинат 32 класса с текстурой дерева и фаской, текстурированные обои под покраску, крашеный потолок, откосы, установку подоконников. Межкомнатные двери глухие, остекленная дверь в кухню.

? В санузле стены и пол отделаны керамической плиткой, установлены все сантехнические приборы, выполнена разводка и подключение воды, установлены латунные однорычажные смесители.

? Выполнена разводка электрики и установка конечных устройств электрофурнитуры.

? Светодиодные светильники в прихожей, санузле и на лоджии/балконе.

Отделка класса White Box

Данный вид отделки квартиры широко распространен среди застройщиков. Он подразумевает, что квартира полностью подготовлена к чистовой отделке и все черновые работы выполнены.

Полы выровнены. Потолки подготовлены для отделки. Выполнена скрытая разводка электрики. Стояка ГВС/ХВС, канализация с заглушками и приборами учета.

Клиенту останется только выбрать отделочные материалы, избежав самые грязные и неприятные процессы, и ремонт готов.

 

Подробнее о проекте и условиях покупки уточняйте у менеджера отдела продаж.

Дата изменения: 22.08.2025
id 4145112
1 / 14
Юнтоловский пр., 43-55
застройщик
15 271 000 ₽
240 825 ₽/м2

Продается 3-комнатная квартира, 63,41 кв.м. по адресу: Россия, Санкт-Петербург, ЖК «Юнтолово». Квартира от Застройщика.Возможна покупка квартиры по льготным и специальным ипотечным программам.

Цена указана с учетом применения скидки.

Условия и актуальные ставки уточняйте у менеджера отдела продаж.

ПАРК-КВАРТАЛ – один из кварталов с индивидуальным смыслом. Квартал граничит с парками без пересечения транспортных артерий. В непосредственной близости к памятнику природы Юнтоловскому заказнику. Есть видовые квартиры на Финский залив.

Строит один застройщик, поэтому грамотно планирует улично-дорожную сеть, пешеходные зоны, парковые пространства. Целостность проекта без архитектурных нарушений. Вместе с вводом в эксплуатацию всего квартала будет введена поликлиника для детей и взрослых и детский сад (в границах квартала).

ПАРК-КВАРТАЛ спроектирован по принципам разумной организации пространства, когда все основные объекты инфраструктуры в шаговой доступности. Включает поликлинику для взрослых и детей с современным оборудованием, новый детский сад на 200 мест, крытую наземную парковку вместительностью до 500 машино-мест и коммерческие помещения на первых этажах жилых зданий, предлагающие широкий ассортимент товаров и услуг.

Преимущества:

? Оригинальные, европейские фасады от архитектурного бюро «А. Лен», известные своим выдержанным и гармоничным стилем

? Увеличенные оконные проёмы с живописными видами на Центральный парк и «гринфингер»

? Жилье у парка (граничит с Центральным парком и гринфингером)

? Закрытые дворы без машин (корпуса 3-6)

? Ландшафтный дизайн и арт-объекты на территории квартала

? Коммерция на первых этажах корпусов 3-6

? Высота потолков в квартирах 2,76 м

? Колясочные в каждой парадной

? Проходные парадные и безбарьерная среда

? Не более 6 квартир на этаже

? Лифтовое оборудование европейского бренда

? Яркие и стильные входные группы с крупной индикацией номера подъезда и козырьком

? Графичное оформление балконов и лоджий

? Контрастная цветовая гамма, декоративные вставки из кирпича

? Квартиры с чистовой отделкой «Комфорт» и White Box

Отделка класса Комфорт представлена в двух вариантах цветового исполнения.

? Включает в себя ламинат 32 класса с текстурой дерева и фаской, текстурированные обои под покраску, крашеный потолок, откосы, установку подоконников. Межкомнатные двери глухие, остекленная дверь в кухню.

? В санузле стены и пол отделаны керамической плиткой, установлены все сантехнические приборы, выполнена разводка и подключение воды, установлены латунные однорычажные смесители.

? Выполнена разводка электрики и установка конечных устройств электрофурнитуры.

? Светодиодные светильники в прихожей, санузле и на лоджии/балконе.

Отделка класса White Box

Данный вид отделки квартиры широко распространен среди застройщиков. Он подразумевает, что квартира полностью подготовлена к чистовой отделке и все черновые работы выполнены.

Полы выровнены. Потолки подготовлены для отделки. Выполнена скрытая разводка электрики. Стояка ГВС/ХВС, канализация с заглушками и приборами учета.

Клиенту останется только выбрать отделочные материалы, избежав самые грязные и неприятные процессы, и ремонт готов.

 

Подробнее о проекте и условиях покупки уточняйте у менеджера отдела продаж.

Покупка 3-комнатной квартиры в новостройке в ЖК Юнтолово

На портале БН по данному запросу размещено 24 3-комнатных квартир в новостройках в ЖК Юнтолово.

Стоимость самого дешевого предложения - 14 365 330 руб., самого дорогого - 17 982 879 руб. Общая площадь объектов от 62 м2 до 82 м2.

Средняя стоимость 3-комнатной квартиры в ЖК Юнтолово - 15 799 787 руб. Средняя цена квадратного метра на первичном рынке в ЖК Юнтолово - 242 159 руб.

Свяжитесь с продавцом заитересовавшего вас объекта для получения дополнительной информации или записи на онлайн-показ.