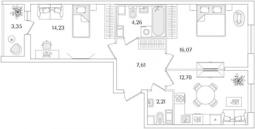
2-комнатная квартира58.8 кв.м.

Скопировать ссылку
26.03.2026 11:00 id 4160329 РСТИ
18 632 341 ₽
316 661 ₽/м2, ипотека
Квартира
Общая площадь
58.84 кв.м.
Жилая площадь
30.30 кв.м.
Кухня
12.78 кв.м.
Ремонт
Черновая отделка
Высота потолков
2.75 м.
Балкон
Балкон
Санузел
Совмещенный
Дом
Название ЖК
Этажность
7/9
Тип дома
Кирпично-Монолитный
Лифт
Есть
Охрана территории
Да
К продаже предлагается двухкомнатная квартира с хорошей планировкой. Это оптимальный вариант для семьи с детьми, которые мечтали о собственной детской и спальне. Данная квартира планируется к сдаче в 2021 году с черновой отделкой.
Расположение
Проспект Ветеранов 5.6 км
Ленинский проспект 6.5 км
Сосновая Поляна 1.5 км
Лигово 2.2 км
Свяжитесь с продавцом
Ваше имя
Телефон
E-mail
Cообщение

Квартиры - улица Тамбасова

Квартиры - улица Тамбасова

Квартиры - Красносельский район Санкт-Петербург

Квартиры - Красносельский район Санкт-Петербург