1-комнатная квартира34.6 кв.м.

Скопировать ссылку
Парнас
вчера 14:09 id 4174100 собственник
7 900 000 ₽
228 324 ₽/м2
Квартира
Общая площадь
34.60 кв.м.
Жилая площадь
10.50 кв.м.
Кухня
14.40 кв.м.
Ремонт
Чистовая отделка
Высота потолков
3.00 м.
Санузел
Совмещенный
Горячая вода
Центральное
Отопление
Центральное
Дом
Название ЖК
Этажность
2/4
Тип дома
Кирпично-Монолитный
Год постройки
2027
Лифт
есть грузовой лифт
Охрана территории
Да

Переуступка права требования на 1-комнатную квартиру в жилом комплексе бизнес-класса Охтинские высоты , корпус 2. Квартира с видом на лес и уютный двор, отделка white box.

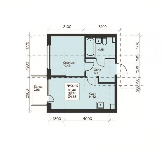
Квартира расположена на 2-м этаже 4-этажного дома с двумя лифтами в каждой секции. Общая площадь - 34,63 кв. м. Жилая площадь составляет 10,46 кв. м, кухня - 14,42 кв. м, коридор - 7,3 кв. м. Высота потолков 3 метра, окна увеличенные (2 х 2 м).

Отделка white box: стяжка пола, штукатурка и шпаклёвка стен, подоконники, откосы из ГКЛ, пожарные извещатели, дверной звонок. Входная металлическая дверь, остекление, разводка электрики и отопления выполнены. В квартире есть специальные отверстия для установки кондиционера с отводом конденсата и местом для наружного блока на крыше, а также для прокладки интернета, телефонии и ТВ.

Уникальное место рядом с курортом Охта Парк. Жилой комплекс находится в живописном районе Мистолово, всего в 7 км от Санкт-Петербурга. Застройщик проектирует пешеходную экотропу до Охта Парка и тропу до реки Охта с причалом. Рядом с домом будет проложена 12,5-километровая лыжная трасса. Важное преимущество: для жителей жилого комплекса вход на территорию Охта Парка будет бесплатным.

В пешей доступности - теннисные клубы, конные клубы, банные комплексы, рестораны и магазины. До КАД - 10 минут на авто (7 км), до метро Парнас - 15-20 минут (11 км), до Охта Парка - 10 минут. Застройщик строит собственную двухполосную подъездную дорогу с тремя остановками общественного транспорта, тротуарами и освещением.

По данным застройщика, в корпусе уже смонтированы окна, завершается устройство кровли. Ведутся внутренние отделочные работы, прокладка инженерных систем. Скоро строители приступят к облицовке фасада. Планируемый срок ввода первой очереди - второй квартал 2027 года.

Квартал малоэтажный (4 этажа), с закрытыми дворами без машин, видеонаблюдением и круглосуточной охраной. Предусмотрены гостевой и отдельно стоящий многоуровневый паркинг, колясочные, тёплые тамбуры, безбарьерная среда. Для семей с детьми: в первой очереди строится детский сад на 120 мест, в перспективе школа на 550 мест и второй сад на 220 мест. Договор долевого участия зарегистрирован в Росреестре, счёт эскроу открыт в ПАО Сбербанк. Возможна ипотека.

Сейчас лучшее время, чтобы забрать эту квартиру по выгодной цене.

Расположение
Парнас 8.2 км
Девяткино 8.4 км
Кузьмолово 3.6 км
Капитолово 4.3 км
Свяжитесь с продавцом
Ваше имя
Телефон
E-mail
Cообщение