Студия21.4 кв.м.

Скопировать ссылку
24.02.2026 14:00 id 4160063 РСТИ
6 715 915 ₽
313 096 ₽/м2, ипотека
Квартира
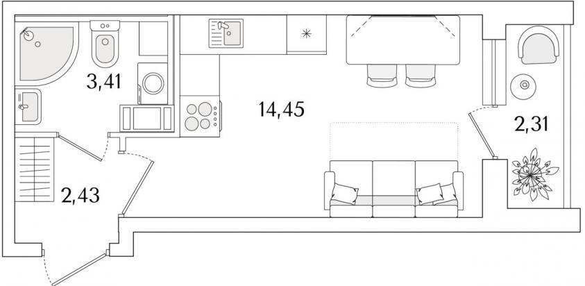
Общая площадь
21.45 кв.м.
Жилая площадь
14.45 кв.м.
Высота потолков
2.75 м.
Балкон
Балкон
Санузел
Совмещенный
Дом
Название ЖК
Этажность
5/9
Тип дома
Кирпично-Монолитный
Лифт
Есть
Охрана территории
Да
В новом ЖК в кирпично-монолитном доме продается квартира-студия. Комфортабельная парадная с просторными лифтами сделает достижение до квартиры своей мечты особенно приятным.
Расположение
Проспект Ветеранов 5.6 км
Ленинский проспект 6.5 км
Сосновая Поляна 1.5 км
Лигово 2.2 км
Свяжитесь с продавцом
Ваше имя
Телефон
E-mail
Cообщение

Квартиры - улица Тамбасова

Квартиры - улица Тамбасова

Квартиры - Красносельский район Санкт-Петербург

Квартиры - Красносельский район Санкт-Петербург