Скажите продавцу, что нашли это объявление на
БН.ру
Заметка об объекте (видна только вам)
Квартира
Общая площадь
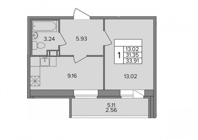
33.91 кв.м.
Жилая площадь
13.02 кв.м.
Кухня
9.16 кв.м.
Ремонт
С отделкой
Высота потолков
2.70 м.
Балкон
Лоджия
Санузел
Совмещенный
Дом
Этажность
3/9
Тип дома
Монолит
Год постройки
2025
Лифт
Есть
№344615 В продаже 1к квартира в ЖК ` Капральский ` расположенная по адресу Лесная улица 19
?д. Новое Девяткино, Всеволожский муниципальный район, Ленинградская область?
В квартире выполнена подчистовая отделка ,что позволяет сэкономить время и силы на ремонте , а так же выполнять ремонт в собственном дизайнерском стиле !
Благоустройство прилегающей территории включает в себя детские и спортивные площадки, зоны отдыха и озеленение. Предусмотрены открытые гостевые парковки.
В пешей доступности находятся детские сады, школы, поликлиника, продовольственные магазины, остановки общественного транспорта. Рядом находится Капральский парк, отличное место для прогулок. Для любителей активного отдыха порадует близость парков — «Охта парк» и «Кавголово» — два горнолыжных курорта, где хорошо в любое время года.
Хорошая транспортная доступность дома позволяет быстро добраться на автомобиле до КАД и ЗСД в любую точку города. Рядом с комплексом остановки общественного транспорта.
От жилого комплекса до станции м. Девяткино можно доехать всего за 7 мин на авто и за 15 минут на общественном транспорте.
ЖК «КАПРАЛЬСКИЙ» - место, где комфорт городской жизни соединяется с природой загорода!
Расположение
Девяткино1.8 км
Гражданский проспект3.8 км
Девяткино1.9 км
Лаврики2.7 км
Сообщение отправлено
Квартиры - Всеволожский район Ленинградская область
Сайт bn.ru использует файлы «cookie» и системы
аналитики для персонализации сервисов и повышения удобства пользования веб-сайтом. Продолжая
просмотр сайта, вы разрешаете их использование.