Скажите продавцу, что нашли это объявление на
БН.ру
Заметка об объекте (видна только вам)
Квартира
Общая площадь
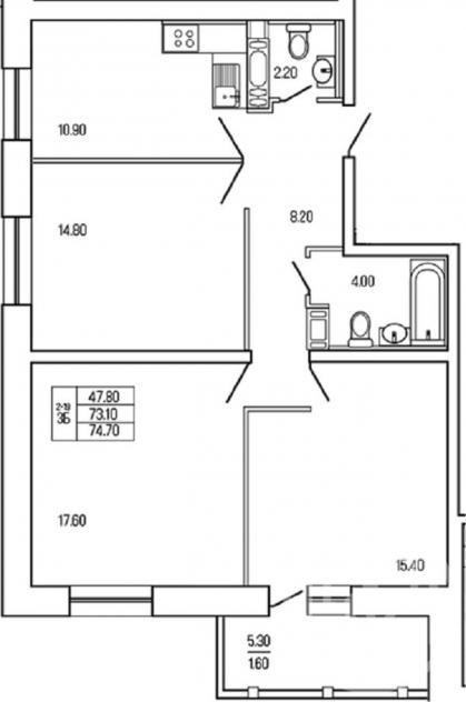
73.70 кв.м.
Жилая площадь
47.80 кв.м.
Кухня
10.90 кв.м.
Ремонт
С отделкой
Высота потолков
2.75 м.
Балкон
Нет
Санузел
Два
Дом
Этажность
7/19
Тип дома
Монолит
Год постройки
2025
Лифт
Есть
№341454 Продам прекрасную новую 3 комнатную квартиру во Всеволожском р-не Лен. обл гор. пос. Кузьмолово. Общая площадь 73,7 м 2, три жилые изолированные комнаты 14,8 м2 , 15,4 м2 и 17.6 м2 . кухня 10,9 м2, просторный коридор 8,2 м2 , большая ванная 4,0 м2, с/у 2,2 м2, большой балкон с остеклением в пол 5,3 м2, высота потолка 2,75 м, этаж 7/19.
Преимущества квартиры и самого дома:
-класс дома А, повышенный энергосберегающий!
- вид на ЛЕС ;
- новая чистовая отделка
- в санузлах кафельная плитка на полу и на стенах до потолка;
- акриловая ванна, раковина с подвесной тумбой;
- увеличенные оконные проемы,
- пол ламинат 33 класса;
- в этом доме дополнительно можно приобрести кладовое помещение для хранения сезонных вещей;
- наземная парковка для машин;
Преимущества локации:
- до КАД 10 мин ;
- рядом находится вся развитая инфраструктура!!
- до ж/д станции и автобусной остановки пешком можно дойти за 5-7 мин;
- на электричке до метро Девяткино 10 мин., до метро пл Ленина 30 мин;
- до центра СПб наземным транспортом 40 мин;
- рядом 2 школы , 3 детских сада;
- взрослая и детская поликлиники;
- Кузьмоловский дом культуры;
- отделение полиции;
- банки, аптеки, кафе, пекарни, магазины ( пятерочка и др.)
- самое главное преимущество- это в пешей доступности КУЗЬМОЛОВСКИЙ КАРЬЕР с ПЛЯЖЕМ и шикарными видами на огромный сосновый лесопарк ;
- так же очень большая зеленая зона лесопарка с прудом находится вокруг дома , где каждый день можно гулять с детьми, с питомцами , да и просто отдыхать на природе!
Достопримечательности в Кузьмолово:
- До ОХТА ПАРКА можно доехать за 20 мин на авто;
-Пешеходный эко маршрут Долина реки Охта;
-Пешеходный эко маршрут Изумрудное озеро;
-Поляна сказок;
-Дом жестянщика и многое другое.
Все вышеперечисленные преимущества квартиры дают возможность комфортно проживать семьям с детьми, а также возможно покупка квартиры в этой локации для старшего поколения.
Квартиру можно купить по семейной ипотеке!
Звоните , записывайтесь на просмотр квартиры !!!
Расположение
Девяткино7.3 км
Гражданский проспект9.5 км
Кузьмолово0.3 км
Капитолово2.1 км
Сообщение отправлено
Квартиры - Всеволожский район Ленинградская область
Сайт bn.ru использует файлы «cookie» и системы
аналитики для персонализации сервисов и повышения удобства пользования веб-сайтом. Продолжая
просмотр сайта, вы разрешаете их использование.