11 549 000 ₽
179 054 ₽/м2, прямая продажа
Квартира
Общая площадь
64.50 кв.м.
Жилая площадь
29.80 кв.м.
Кухня
10.70 кв.м.
Ремонт
С отделкой
Высота потолков
2.75 м.
Балкон
Балкон
Санузел
Два
Дом
Этажность
4/19
Тип дома
Монолит
Год постройки
2025
Лифт
Есть
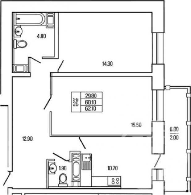
№341434 Продам прекрасную новую 2 комнатную квартиру во Всеволожском р-не Лен. области д. Кузьмолово. Общая площадь 62,1 м 2, две жилые изолированные комнаты 14,3 м2 и 15,5 м2, кухня 10,7 м2, просторный коридор 12.9 м2 , большая ванная 4,8 м2, с/у 1,9 м2, большой балкон с остеклением 6,8 м2, высота потолка 2,75 м, этаж 4/19 Преимущества квартиры и самого дома: - новая чистовая отделка - в санузлах кафельная плитка на полу и на стенах до потолка; - акриловая ванна, раковина с подвесной тумбой; - увеличенные оконные проемы, что дает дополнительный дневной свет; - пол ламинат 33 класса; - наземная парковка; - в этом доме дополнительно можно приобрести кладовое помещение для хранения сезонных вещей; Преимущества локации: - вся развитая инфраструктура!! - до ж/д станции и автобусной остановки пешком можно дойти за 5-7 мин; - на электричке до метро Девяткино 10 минут; - до центра СПб наземным транспортом 40 мин; - рядом школа , детский сад; - взрослая и детская поликлиники; - Кузьмоловский дом культуры; - отделение полиции; - банки, аптеки, кафе, пекарни, магазины ( пятерочка и др.) - самое главное преимущество- это в пешей доступности КУЗЬМОЛОВСКИЙ КАРЬЕР с ПЛЯЖЕМ и шикарными видами на огромный сосновый лесопарк ; - так же очень большая зеленая зона лесопарка с прудом находится вокруг дома , где каждый день можно гулять с детьми, с питомцами , да и просто отдыхать на природе! Достопримечательности в Кузьмолово: -Пешеходный экологический маршрут Долина реки Охта; -Пешеходный экологический маршрут Изумрудное озеро; -Поляна сказок; -Дом жестянщика и многое другое. Все вышеперечисленные преимущества квартиры дают возможность комфортно проживать семьям с детьми, а также возможно покупка такой квартиры для старшего поколения. Либо, кто устал от городской суеты и хочет удаленности и замедления! Квартиру можно купить по семейной ипотеке! Звоните , записывайтесь на просмотр квартиры !!!
Расположение
Девяткино 7.3 км
Гражданский проспект 9.5 км
Кузьмолово 0.3 км
Капитолово 2.1 км
Свяжитесь с продавцом
Ваше имя
Телефон
E-mail
Cообщение

Квартиры - улица Железнодорожная

Квартиры - улица Железнодорожная

Квартиры - Всеволожский район Ленинградская область

Квартиры - Всеволожский район Ленинградская область