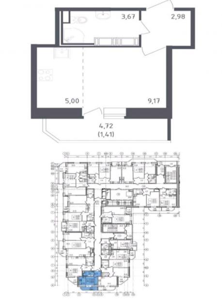
Студия22.2 кв.м.

Скопировать ссылку
Рыбацкое
19.02.2026 18:00 id 4167634 Адвекс, Брагина Е.М.
6 900 000 ₽
310 391 ₽/м2, ипотека
Квартира
Общая площадь
22.23 кв.м.
Жилая площадь
14.17 кв.м.
Санузел
Совмещенный
Дом
Название ЖК
Этажность
20/23
Тип дома
Кирпично-Монолитный
Год постройки
2026
ID: 353666 Продается по переуступке студия с отличной планировкой в ЖК Живи в Рыбацком. В квартире все продумано. Отдельно выделена зона кухни , есть большой застекленный балкон 5 метров, просторный санузел, для хранения ниша в прихожей. В стоимость входит полная чистовая отделка и мебель. Комплект кухонной мебели и сет в прихожую в подарок покупателю. Из окон открывается панорамный вид на город. Корпус 39 находится в квартале с прекрасной панорамой на акваторию Невы. В ЖК закрытый двор без машин, современные детские площадки для всех возрастов. В парадной помещение для хранения колясок и велосипедов. Паркинг. Район с развитой инфраструктурой. рядом школы, садики, магазины, кафе, медицинские учреждения. Прогуляться можно вдоль Невы и в ближайшем парке. До метро Рыбацкое пешая доступность 20 минут. Рядом выезд на Кад. Срок сдачи 2026 год. Звоните, организуем безопасную сделку.
Расположение
Рыбацкое 1.9 км
Обухово 4.9 км
Рыбацкое 2.1 км
Славянка 3.0 км
Свяжитесь с продавцом
Ваше имя
Телефон
E-mail
Cообщение

Квартиры - проспект Советский (Усть-Славянка)

Квартиры - проспект Советский (Усть-Славянка)

Квартиры - Невский район Санкт-Петербург

Квартиры - Невский район Санкт-Петербург