Помещение

Скопировать ссылку
Горный институт
16.01.2026 10:03 id 4165352 Адвекс, Нарушявичус В.В.
2 300 000 ₽
766 667 ₽/м2, ипотека
Помещение
Тип объекта
Помещение
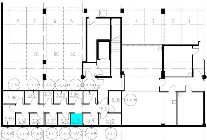
Общая площадь
3.20 кв.м.
Этаж
-1
Здание
Охраняемая территория
нет
ID: 832228 Предлагается к продаже коммерческое помещение нежилого фонда, расположенное по адресу: Санкт-Петербург, Василеостровский район, Большой проспект Васильевского острова, дом 67. Объект находится в жилом комплексе бизнес-класса Большой 67, который отличается развитой инфраструктурой. Общая площадь помещения составляет 3,2 квадратных метра. Помещение оснащено необходимыми коммуникациями: теплоснабжением и электроснабжением. В здании имеется лифт, что обеспечивает удобный доступ. Помещение предназначено для использования в качестве склада или кладовой. Локация объекта удобна благодаря близости станции метро Горный институт, что обеспечивает хорошую транспортную доступность. Василеостровский район является центральным и востребованным с точки зрения коммерческого использования недвижимости. Объект продается по цене 2,3 миллиона рублей с возможностью оформления в ипотеку. Документы полностью подготовлены для сделки, в договоре будет зафиксирована полная сумма. Для безопасности предусмотрено видеонаблюдение. Предложение подходит для тех, кто ищет компактное и удобное место для хранения личных вещей, велосипедов или сезонных предметов.
Расположение
Горный институт 0.4 км
Василеостровская 1.1 км
Санкт-Петербург (Балтийский вокзал) 3.7 км
Санкт-Петербург (Витебский вокзал) 4.0 км
Свяжитесь с продавцом
Ваше имя
Телефон
E-mail
Cообщение