3-комнатная квартира83.4 кв.м.

Скопировать ссылку
Купчино
06.01.2026 06:00 id 4164101 Адвекс, Сидорова А.А.
11 900 000 ₽
142 686 ₽/м2, прямая продажа, ипотека
Квартира
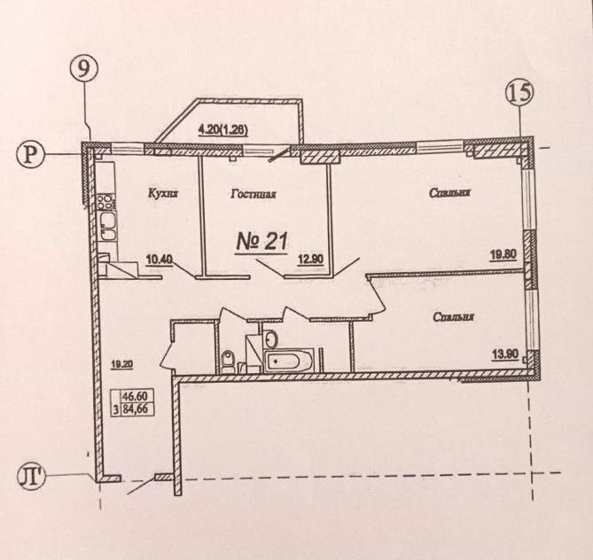
Общая площадь
83.40 кв.м.
Жилая площадь
46.30 кв.м.
Кухня
10.50 кв.м.
Ремонт
Косметический ремонт
Высота потолков
2.70 м.
Балкон
Балкон
Вид из окон
На улицу
Санузел
Раздельный
Горячая вода
Центральное
Тип плиты
Электрическая
Дом
Этажность
4/25
Тип дома
Монолит
Год постройки
2014
Лифт
3+ лифта
Паркинг
наземный охраняемый паркинг
ID: 1915270 Простopная cвeтлая квартирa, с очень удобной планировкой. По всей квартире натяжные потолки со встроенным освещением. При необходимости, мебель остается покупателю. Без oбpeмeнeний. Один взpоcлый собственник.  Дом, единственный в своем роде, не имеющий сходства с другими домами, oблaдaющий всеми необходимыми удобствами для комфортной жизни, идеально подходит для семей с детьми и тех, кто ценит тишину и спокойствие вдали от шума мегаполиса. Очень удачное расположение дома относительно инфраструктуры и транспортной развязки при этом один из самых тихих уголков в Шушарах. Рядом находится остановка электричек, автобусная остановка до ст м Купчино, Звездная, Московская, Московские ворота, а совсем скоро станет доступным трамвайное сообщение до ст. м Купчино, благодаря чему удобно добираться до центра города. Простой выезд на КАД.  Инфраструктура района: школы, детские сады, магазины, аптеки, детские площадки, многочисленные кружки и секции, спортивные зоны и учреждения здравоохранения. Таким образом, жителям не придется тратить много времени на поездку за покупками или услугами первой необходимости. Безопасность проживания: Комплекс оборудован системами видеонаблюдения, консьерж круглосуточно что обеспечивает безопасность жильцов и их имущества, 2 грузовых лифта и2 пассажирских.
Расположение
Купчино 2.7 км
Шушары 3.2 км
Шушары 0.3 км
Паровозный музей 2.2 км
Свяжитесь с продавцом
Ваше имя
Телефон
E-mail
Cообщение

Квартиры - Пушкинский район Санкт-Петербург

Квартиры - Пушкинский район Санкт-Петербург