2-комнатная квартира59.8 кв.м.

Скопировать ссылку
Балтийская
22 900 000 ₽
382 943 ₽/м2, прямая продажа
Квартира
Общая площадь
59.80 кв.м.
Жилая площадь
19.60 кв.м.
Кухня
19.80 кв.м.
Ремонт
Черновая отделка
Высота потолков
3.00 м.
Балкон
Нет
Санузел
Два
Дом
Этажность
4/9
Тип дома
Монолит
Год постройки
2025
Лифт
Есть
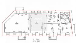
№341501 Жить так, как хочется, не идя на компромисс. Квартира формата 2+ в комплексе на набережной Обводного канала. Квартира 59,8 м. кв. с кухней гостиной 19,8 м.кв., две полноценные спальни , два просторных сан.узла, две гардеробные, высота потолков 3 метра и панорамные окна! Дом бизнес класса находится под круглосуточным видеонаблюдением и имеет собственный зеленый парк во дворе без доступа для автомобилей. На придомовой территории расположены детские и спортивные площадки, пешие и велодорожки, зоны отдыха. Для владельцев авто предусмотрен подземный паркинг. В пешей доступности Мариинский театр, Польский сад, набережная реки Фонтанки. В пешей доступности расположены школы, детские сады, магазины, кафе, салоны красоты, медицинские учреждения.
Расположение
Балтийская 0.4 км
Фрунзенская 0.9 км
Санкт-Петербург (Балтийский вокзал) 0.5 км
Санкт-Петербург (Витебский вокзал) 1.8 км
Свяжитесь с продавцом
Ваше имя
Телефон
E-mail
Cообщение

Квартиры - набережная Обводного канала

Квартиры - набережная Обводного канала

Квартиры - Адмиралтейский район Санкт-Петербург

Квартиры - Адмиралтейский район Санкт-Петербург