2-комнатная квартира46 кв.м.

Скопировать ссылку
Ладожская
8 350 000 ₽
181 522 ₽/м2, прямая продажа
Квартира
Общая площадь
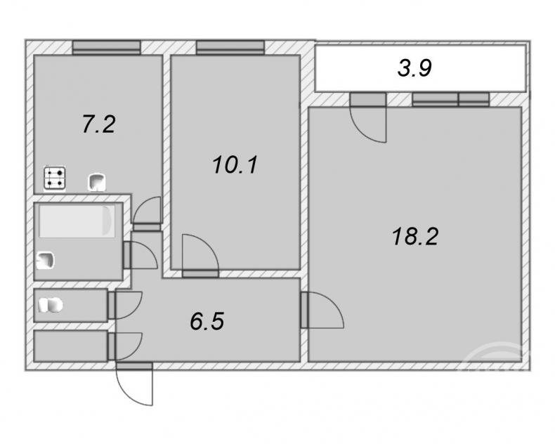
46.00 кв.м.
Жилая площадь
28.30 кв.м.
Кухня
7.20 кв.м.
Ремонт
Частичный ремонт
Балкон
Балкон
Санузел
Раздельный
Дом
Этажность
7/9
Тип дома
Панельный
Год постройки
1985
Лифт
Есть
№341305 Квартира 2-комнатная 46м2 подготовлена под ремонт в доме ЖСК , продаёт первый её владелец со дня строительства более 5 лет, материнский капитал НЕ использовался, зарегистрирован только сам собственник. В договоре купли- продажи полная сумма, ипотека возможна. УДИВИТЕЛЬНО УДАЧНОЕ местоположение дома: второй ряд от проезжей части (2 минуты на любом транспорте до метро « Ладожская «-следующая остановка. Рядом чудесные зелёные парки, масса магазинов от торгового центра «Июнь» до »Народного». Три окна квартиры выходят на ЮЖНУЮ сторону, вид на озеленение государственного детского садика, двор ухожен, парадная чистая. В доме новый лифт, поменяли в прошлом году ( у нас 7 этаж из 9 ). В доме были заменены стояки. Раздельный санузел с большой ванной, а не с душевой. В коридоре есть кладовая- возможно использовать под гардеробную. На кухне 7,2 м2 электрическая плита. Сугубо раздельные комнаты 18,2 м2 с большим балконом и 10,1 м2, на полу настоящий паркет `как раньше`. Прямая продажа. Просмотры по договорённости.
Расположение
Ладожская 2.0 км
Проспект Большевиков 2.4 км
Санкт-Петербург (Ладожский вокзал) 1.9 км
Ржевка 5.0 км
Свяжитесь с продавцом
Ваше имя
Телефон
E-mail
Cообщение

Квартиры - проспект Косыгина

Квартиры - проспект Косыгина

Квартиры - Красногвардейский район Санкт-Петербург

Квартиры - Красногвардейский район Санкт-Петербург